Ofisin Diğer Projeleri
İlgili Projeler

Arazi

Per Se Mimarlık'ın tasarladığı "Arazi" projesi, Çanakkale'de yer alıyor.

Arazi, Çanakkale'nin Ayvacık ilçesinde, Assos'un batısındaki Bademli Köyü'nün eteklerinde konumlanan, doğayla bütünleşik bir kırsal turizm yerleşkesidir. Proje, beş lise arkadaşının ortak mülkiyetinde olan arazide, ortak yaşam fikri etrafında şekillenen bir otel yapısı, kayıt stüdyosu, bungalovlar, kamp alanı ve bir etkinlik alanından oluşan çok işlevli bir kompleks olarak kurgulanmıştır.

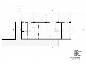
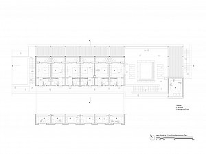
Arazi topoğrafyasının ve mevcut bitki örtüsünün belirleyici olduğu yerleşim kararlarında, az eğimli ve seyrek bitki örtüsüne sahip üç bölge tanımlanmış, bu bölgeleri birbirlerine ve ana girişe bağlayan bir ana aks belirlenmiştir. Girişe yakın olan ilk bölge otel yapısına ayrılmıştır. Aksın sonlandığı ikinci bölgede deniz manzarasına yönelen etkinlik alanı yer almaktadır. Aks üzerindeki kayıt stüdyosu ise bu iki alanı birbirine bağlamaktadır. Üçüncü ve en alt kottaki kamp alanı, merdivenlerle ana aksa bağlanmıştır.

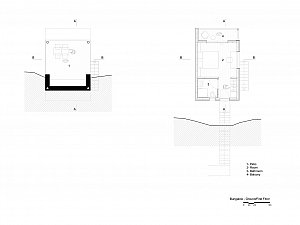
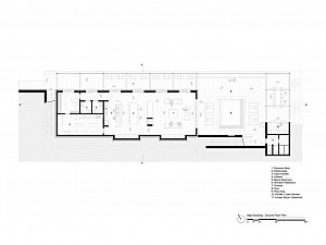
Otel yapısı, hem bireysel hem de kolektif kullanımları barındıracak şekilde tasarlanmıştır. Topoğrafyaya oturan taş/beton zemin kat ile ahşap strüktürlü birinci kattan oluşur. Zemin katta ortak yaşam alanları, açık mutfak ve servis birimleri yer alırken; üst katta dışarıdan erişilen, her biri bağımsız kullanım imkanı sunan, balkonlu ve asma katlı altı oda bulunur. Havuz otelin yanında, manzara tarafında konumlanır; hem bu alandaki hem de konut terasındaki gölgelikler çelik strüktür ve saz örtülerle çözülmüştür.

Bungalovlar, kamp alanını ana aksa bağlayan merdiven hattı boyunca, ağaçlara zarar vermeden ve deniz manzarası maksimize edilerek konumlandırılmıştır. Yamaca dik yerleştirilen bu birimler, betonarme temellere oturan çelik ayaklar üzerinde yükseltilmiş ahşap yapılar olarak tasarlanmıştır.

Arazi, yerel yapım teknikleri ve malzemelerini (taş, ahşap, saz) çağdaş inşaat teknolojileriyle (çelik, beton, modern MEP sistemleri) harmanlayarak, coğrafyaya ait, sürdürülebilir bir tasarım anlayışı benimsemiştir.

Künye
Proje Yeri: Çanakkale
Proje Tipi Grubu: Konaklama

Pin It
Mimarlık Ofisi