BA Evi
Ofisvesaire tarafından tasarlanan BA Evi, İzmir'de yer alıyor.Balçova Evi, mevcut bir konut yapısını yeniden hayal ederek dikkatli bir şekilde özgün ve keskin geometrisini koruyan, aynı zamanda yaşam deneyimini geliştirmek için yeni mekânsal ve malzeme müdahaleleri ekleyen düşünceli bir renovasyon projesidir. Tamamen yeniden inşa etmek yerine, proje daha cerrahi bir yaklaşım benimseyerek, orijinal evin belirli unsurlarını seçici bir şekilde çıkarıp yeniden şekillendirerek mekânsal işlevselliğini, gün ışığı erişimini ve genel yaşanabilirliğini önemli ölçüde artırmayı amaçlamaktadır. Bu dönüşüm sadece fiziksel değil, aynı zamanda programatiktir; evin dolaşım düzeni ve mekânsal hiyerarşisi, çağdaş yaşam biçimlerine daha iyi yanıt verecek şekilde yeniden yapılandırılmıştır.
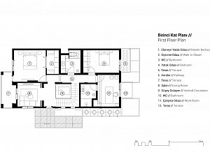
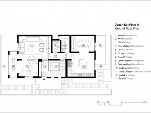
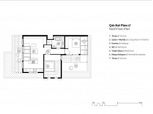
Projenin en önemli yönlerinden biri, iç mekân düzeninin köklü bir şekilde yeniden organize edilmesidir. Mekânsal kurgu, parçalı ve içe dönük bir plandan daha akıcı ve işlevsel bir düzene doğru önemli bir dönüşüm geçirmiştir. Üst katta daha önce yeterince değerlendirilmeyen bir hacim, kompakt ve kendi kendine yeten bir yaşam birimi olarak yeniden programlanmıştır. Bu minimal kapalı alan, mekânsal deneyimi zenginleştirirken bir yandan da genişleme ve özerklik hissi sunan açık ve yarı açık teraslar dizisiyle desteklenmektedir.
Teraslar aynı zamanda peyzajla değişken görsel ilişkiler sunar: kuzeye doğru denizin uzak manzaraları, güneye doğru ise kentsel sınır boyunca yükselen çam ormanı yer alır. Zemin kattaki bahçenin sınırlı büyüklüğü göz önünde bulundurularak, üst terasta ek bir açık alan ve serinletici bir mikroklima sağlamak amacıyla yeşil çatı uygulaması yapılmıştır. Bu yeşil yüzey, dikey saksılar aracılığıyla cephe boyunca aşağıya doğru devam ederek çatı ile zemin arasında görsel bir süreklilik oluşturur ve binanın köşeli geometrisini yumuşatır. Aynı zamanda bu yeşil yüzeyler pasif çevresel ögeler olarak gölgeleme ve yalıtım katkısı sağlar.
Evin mimari dili, eski ile yeninin arasındaki karşıtlıkları vurgular. Orijinal kütle net ve köşeli haliyle korunurken, yeni eklemeler cesur malzeme kullanımı, canlı renkler ve çeşitli dokularla ifade edilmiştir. Aydınlatma şeritleri, gece boyunca evin geometrisini vurgularken, entegre bitkilendirme yumuşaklık ve dinamizm katar. Teraslara bakan bir cephe yeniden tasarlanarak gün ışığının iç mekânın derinliklerine kadar ulaşması sağlanmış, adeta bir ışık tüneli işlevi görerek gün boyunca atmosferi canlandırmıştır.
Yoğun bir kentsel doku içinde konumlanan Balçova Evi, sadece bir renovasyon değil, çevresiyle yeniden bir etkileşimdir. Mekânsal yeniden programlama, malzeme netliği ve mevcut yapıya ve kısıtlarına duyulan derin saygı sayesinde proje, mimarinin silmeden de evrimleşebileceğine dair bir örnek teşkil eder; sadelik, işlev ve ifadenin rafine bir dengesine ulaşır.

Tweet