Pür Records
SOUR, Cunda Adası'nda yer alan bir kayıt stüdyosu ve butik otel olan Pür Records projesini tamamladı.
Pür, Tarihi doku ve yerel zanaat ile dünya standartlarındaki kayıt ortamını birlikte var etmek üzere, uluslararası ve yerel müzisyenlerle birlikte ortak yaratım süreciyle tasarlanan; butik otel ve kayıt stüdyosunu birleştiren özgün bir yapı.
Cunda, Türkiye — 16 Mart 2026. Ege’nin kalbi Cunda adasında butik otel ve kayıt stüdyosu olarak tamamlanan Pür aslında basit ama bir o kadar da hayati bir inancı temsil ediyor: Müzik bizi birleştirir; bunu yaparken farklılıkları onurlandır, bireyselliği mümkün kılar.
Bu bağlamda Pür, aslında bir etkileşim altyapısıdır; müzik üretme eyleminin, farklı kültürler ve bağlamlar arasında topluluk inşa etme pratiğiyle iç içe geçtiği bir duraktır.
Projenin mimarı İnanç Eray bu sureci "Pür; mevcut dokuya saygılı yaklaşan ve yerel değerleri yücelten, aynı zamanda mekânsal hisleri ve yaşam kalitesi konusundaki uluslararası tasarım uzmanlığımızı uygulama imkân bulduğumuz harika bir yolculuk oldu." diyerek anlatıyor.
“Karşıtlıkları hizalama deneyi”
Proje, mimarinin temel bir sorunsalına odaklanıyor: Bir yapı; denizin, zeytin ağaçlarının, rüzgârın ve kuşların oluşturduğu tabiatında var olan karakteri onurlandırırken, profesyonel müzik üretimi için gereken kusursuz akustik deneyimi nasıl sunabilir?
Yerelin ruhuna saygı duyup onunla bütünleşirken, en son teknoloji ile yeni bir destinasyon yaratmak mümkün mudur? Küresel ve yerel dinamiklerin birbirine rakip değil, aksine birbirini güçlendiren unsurlar olabilir mi? Bu çerçevede Pür, tam da bu karşıtlıkların birbirine alıştırıldığı bir deney olarak kurgulandı.
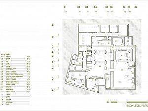
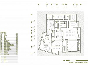
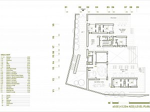
Pür, karşıtlıklardan doğan gerilimi mekânsal bir yolculuğa dönüştürüyor. Yapı; Cunda’nın mimari mirasına sadık kalan, ancak tektonik dilini çağdaş teknikler ile rafine eden yalın, iki katlı bir yığma ve ahşap strüktür olarak yükseliyor.
İç mekânda ise deneyim bütünüyle evriliyor. İç mekânlar; değişken tavan yükseklikleri, farklı genişlik ve derinlikler ile titizlikle kalibre edilmiş yansıtıcı/yutucu yüzeylerden oluşan bir ses peyzajı sekansı olarak kurgulanarak, her mekân; hacmi, formu ve malzemesiyle ayrılmaz bir bütün oluşturarak, eğitimli bir kulağın hemen ayırt edebileceği özgün bir mekân deneyimi sunuyor.
Cam elyaf takviyeli beton bir kabuk, bu dönüşümü tek bir hamleyle dışa vuruyor: Kullanıcıyı, Cunda’nın geleneksel sükûnetinden alıp yüksek performanslı bir ses evrenine taşıyan bu eşik; müziğin zaman, kültürler ve insanlar arasındaki akışkanlığını simgeleyen bir ses peyzajı işlevi görüyor.
Doğal Işıkla Beslenen Bir "Mağara"
Bu mekânsal geçiş, kullanıcıları zemin kattan -10m kotunda yer alan Müzisyen Fuayesi ’ne yönlendiriyor. Bu iniş, müzik üretimine odaklanmayı kolaylaştıran yeraltı mağara atmosferini çağrıştırırken; doğal ışık, tasarımın ana omurgası olmayı sürdürüyor.
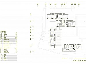
Kot farkına rağmen fuaye; restoran ve üst teraslarla kurduğu güçlü görsel bağ sayesinde ferahlığını koruyor. Bu akışkan mekânsal kurgu, mahremiyet ve konfor dengesini gözeterek; kullanıcıda bir "bodrum katı" hissinden ziyade, gerçek bir "ev” deneyimi yaratıyor.
Canlı kayıt odaları, kontrol odası, vokal ve perküsyon odaları, eko odaları, montaj süitleri, mastering süiti ve Dolby Atmos sinemasından oluşan stüdyo kompleksi, akustik yalıtım ve performans için kutu içinde kutu sistemiyle inşa edildi. 75 kişilik bir orkestrayı ağırlayabilecek ölçekteki ana kayıt odası; hareketli duvar panelleri ve yüksekliği ayarlanabilir tavan sistemi sayesinde tıpkı bir enstrüman gibi "akort edilebiliyor."
Stüdyonun akustik tasarımını gerçekleştiren Chris Walls (Level Acoustic Design) “Bu stüdyoyu benzersiz kılan şey; yüksekliği ayarlanabilir hareketli tavan panelleri ile değişken duvar panellerinin birleşimidir. Bu sistem, stüdyonun çınlama süresini ve erken yansıma modellerini her türlü kayda uygun hale getirmemizi sağlıyor. Bu özellik, iki eko odasıyla birleştiğinde Pür’e inanılmaz derecede çeşitli ve özgün bir sonik palet kazandırıyor." diye ekliyor.
Ortak Yaratım Süreci
Tasarım, SOUR’ un katılımcı tasarım metotları çerçevesinde uluslararası ve yerel müzisyenlerle birlikte belirlediği temel ilkelere dayanıyor: Doğayla temas, "glokal" tavır, aktif yaratıcılık alanları ve kişisel kaçış noktaları. Bunlar sadece soyut kavramlar değil; her bir mekânsal kararı doğrudan şekillendiren gerçek ihtiyaçlar.
Sonuçta ortaya çıkan yapı; mimarinin iş birliğinin, içinde üretecek ve ona can verecek olanların sesiyle hayat bulan bir kültürel üretim merkezi olduğunun kanıtı gibi.
"Henüz yolun başındayız ancak Fazıl Say gibi stüdyomuzu kullanan ilk sanatçılarımız, Pür Cunda’nın yaratıcılığın önündeki tüm engelleri kaldırdığını dile getirdiler. Buradaki zaman, özgürlük, huzur ve ilham; yaratıcı fikirlerin doğal bir akışla ve 'yaratıcı bir kaos' hissiyle filizlenip gelişmesine imkân tanıyor."
Pieter Snapper, Pür Cunda Müzik Direktörü.

Tweet