31/34
Paylaş
Resmi Orjinal Boyutunda Göster
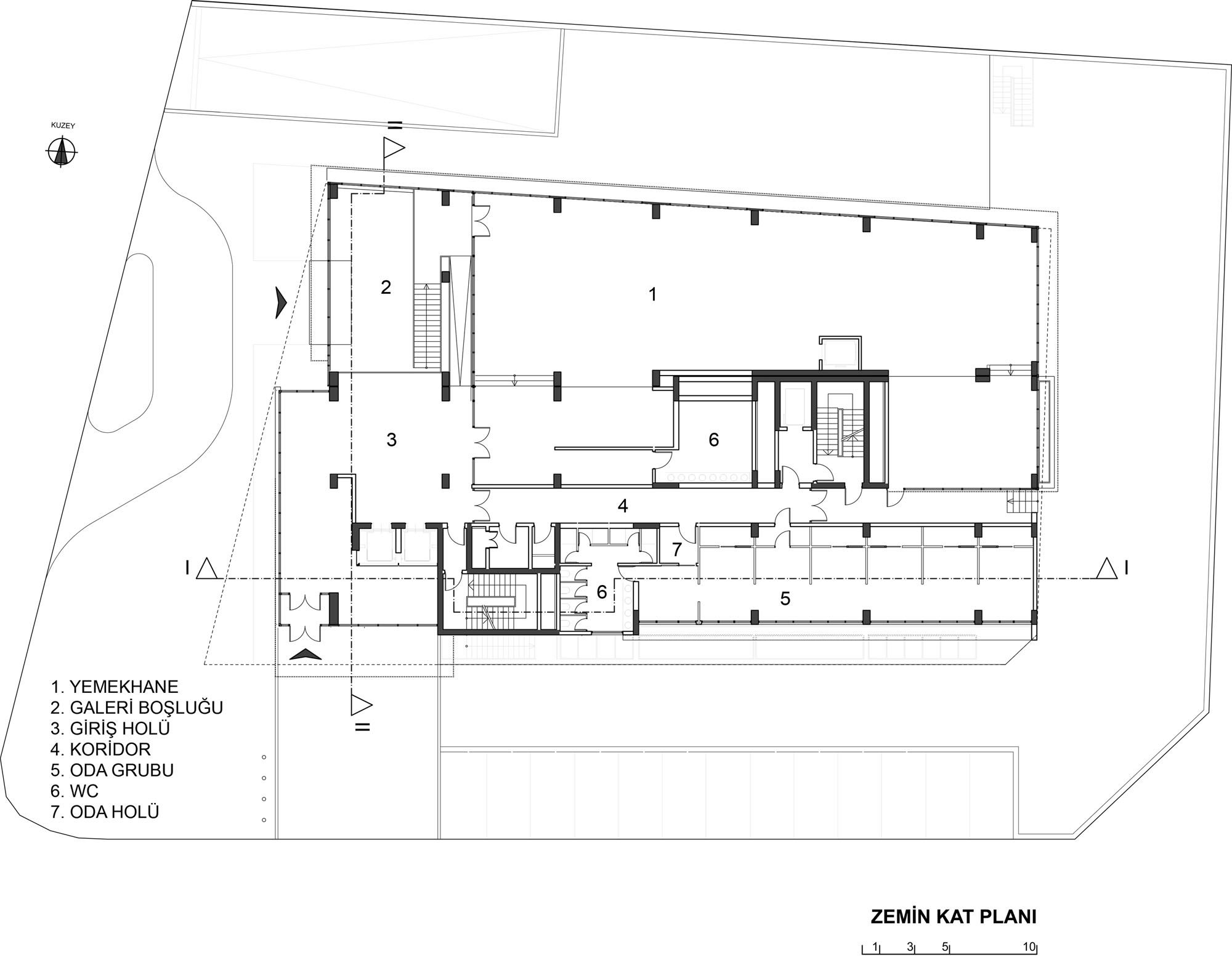
Melek İpek Kız Öğrenci Yurdu
Proje Yeri: Ankara
Proje Ofisi: Hatırlı Mimarlık
Proje Tipi: Yurt / Konukevi
Tasarım Ekibi: Yeşim Hatırlı, Nami Hatırlı
İşveren: Koza – İpek Holding AŞ
Yardımcı: Nazan Çapoğlu, Orçun Köken, Özge Bahar Albostan, Pınar Ünal, Başak Çevik
Peyzaj Mimarlığı: Anser Peyzaj Mimarlık
İç Mekan Projesi: Craft312 Studio
Statik Projesi: Portal Mühendislik, Gökhan Beşbaş
Mekanik Projesi: OTM Mühendislik, Onur Tuğa
Elektrik Projesi: Özay Mühendislik, Kemal Aykaç
Fotoğraf: Koza – İpek Holding AŞ
Proje Başlangıç Yılı: 2011
Proje Bitiş Yılı: 2012
İnşaat Başlangıç Yılı: 2011
İnşaat Bitiş Yılı: 2013
Arsa Alanı: 2.900 m²
Toplam İnşaat Alanı: 10.500 m2