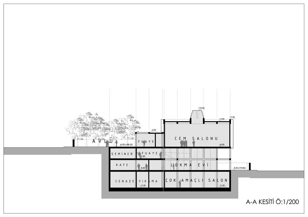
Kesit A
12/18
Paylaş
Resmi Orjinal Boyutunda Göster
Yalova Cem Kultur Evi
Project Location: Yalova
Project Type: Cem House
Proje Tipi Grubu: Dini
Tasarım Ekibi: Hülya Turgut, Emel Cantürk, Arda Oral Koçak
Employer: Yalova Belediyesi
Structural Project: Tuna Proje
Project Start Date: 2013
Project End Date: 2013
Building Plot Area: 2330 m²
Total Construction Area: 3354 m²