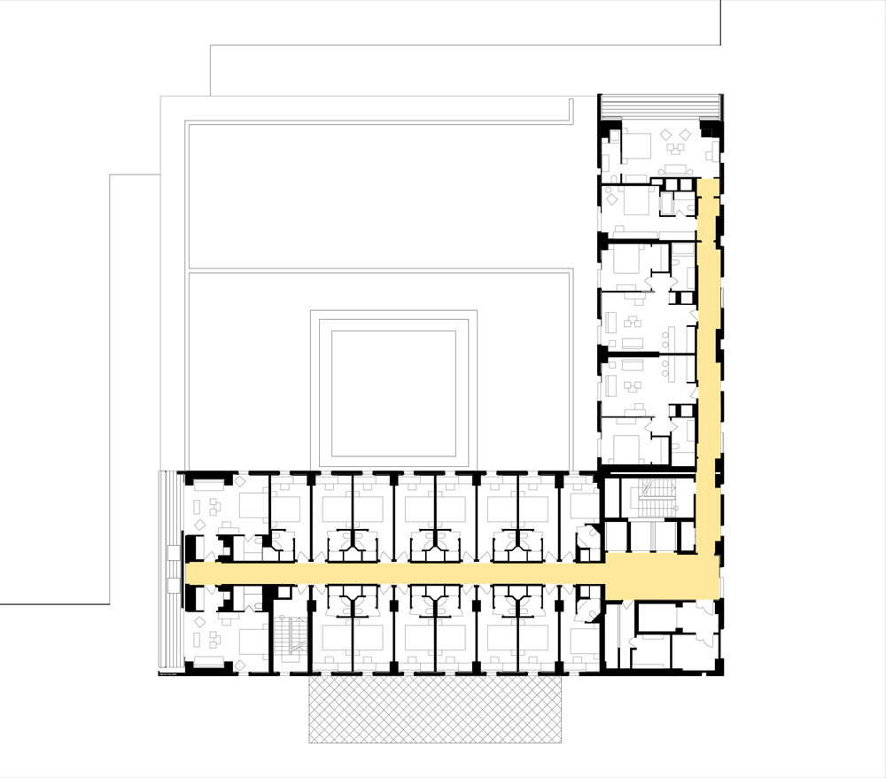
6.Kat Planı
23/23
Paylaş
Resmi Orjinal Boyutunda Göster
Otel WorkInn
Fotoğraflar: Cemal Emden (Aralık, 2013)
Proje Yeri: Çayırova, Kocaeli (İzmit)
Proje Ofisi: Çinici Mimarlık
Proje Tipi: Otel / Motel
Proje Tipi Grubu: Konaklama
Tasarım Ekibi: Can Çinici, Selim Koytak, Cem Katkat, Adil Ömer Çamaş, Cemre Teomete
İşveren: Uyar Grup
Ana Yüklenici: Perspektiv Yapı
Peyzaj Mimarlığı: Ulaş Erayan
İç Mekan Projesi: Deer Architects
Proje Yöneticisi: Yaşar Doğu, T. Göksel Kekeç
Statik Projesi: Ontü Mühendislik
Mekanik Projesi: Mekanik Proje
Elektrik Projesi: Öneren Proje ve Mühendislik
Akustik Danışmanı: Duyal Karagözoğlu
Proje Başlangıç Yılı: 2009
Proje Bitiş Yılı: 2011
İnşaat Başlangıç Yılı: 2011
İnşaat Bitiş Yılı: 2013
Arsa Alanı: 11.000m²
Toplam İnşaat Alanı: 12.000m²