10/10
Paylaş
Resmi Orjinal Boyutunda Göster
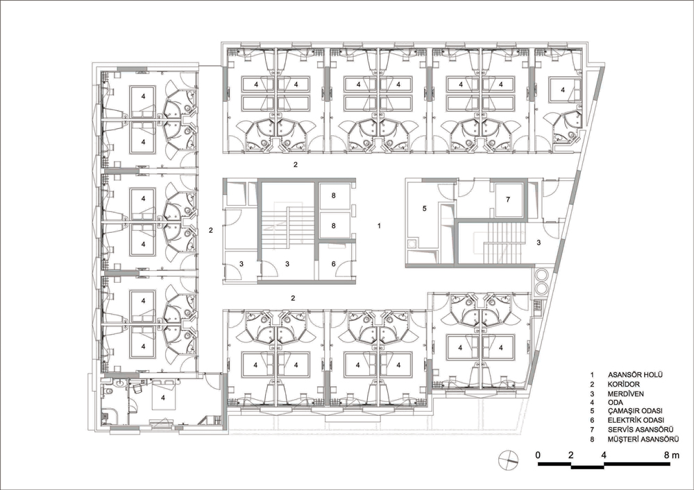
140 odalı İbis Otel, İzmir
Proje Yeri: İzmir, Konak
Proje Ofisi: YPM
Proje Tipi: Otel / Motel
Tasarım Ekibi: R. Güneş Gökçek
İşveren: Akfen GYO
Yardımcı: Ebru Sinan, Emre Şahin, Bora Yıldırım, Birkan Sevinç
Aydınlatma Projesi: YPT
Statik Projesi: YPT
Mekanik Projesi: YPT
Elektrik Projesi: YPT
Tesisat Projesi: YPT
Akustik Danışmanı: Duyal Karagözoğlu
Yangın Güvenlik Danışmanı: Abdurrahman Kılıç, Kazım Beceren
Proje Başlangıç Yılı: 2010
Proje Bitiş Yılı: 2011
İnşaat Başlangıç Yılı: 2011
İnşaat Bitiş Yılı: 2013
Arsa Alanı: 630 m²
Toplam İnşaat Alanı: 5.850 m²