16/18
Paylaş
Resmi Orjinal Boyutunda Göster
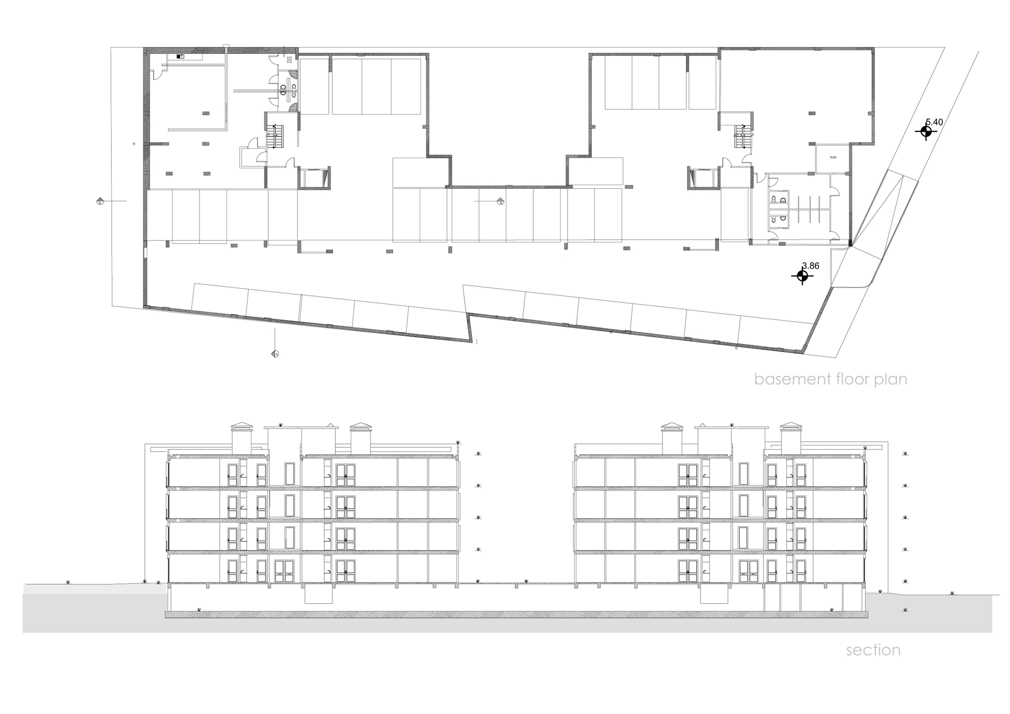
DENCITY
Fotoğraflar: Merve Güleryüz (2013)
Proje Yeri: Tuzla, İstanbul
Proje Ofisi: Merve Güleryüz Mimarlık
Proje Tipi: Konut Sitesi / Grubu
Tasarım Ekibi: Merve Güleryüz
Ana Yüklenici: Balvin Yapı
Proje Başlangıç Yılı: 2011
Proje Bitiş Yılı: 2011
İnşaat Başlangıç Yılı: 2011
İnşaat Bitiş Yılı: 2013
Arsa Alanı: 2, 360 m²
Toplam İnşaat Alanı: 3.802,84 m²