23/33
Paylaş
Resmi Orjinal Boyutunda Göster
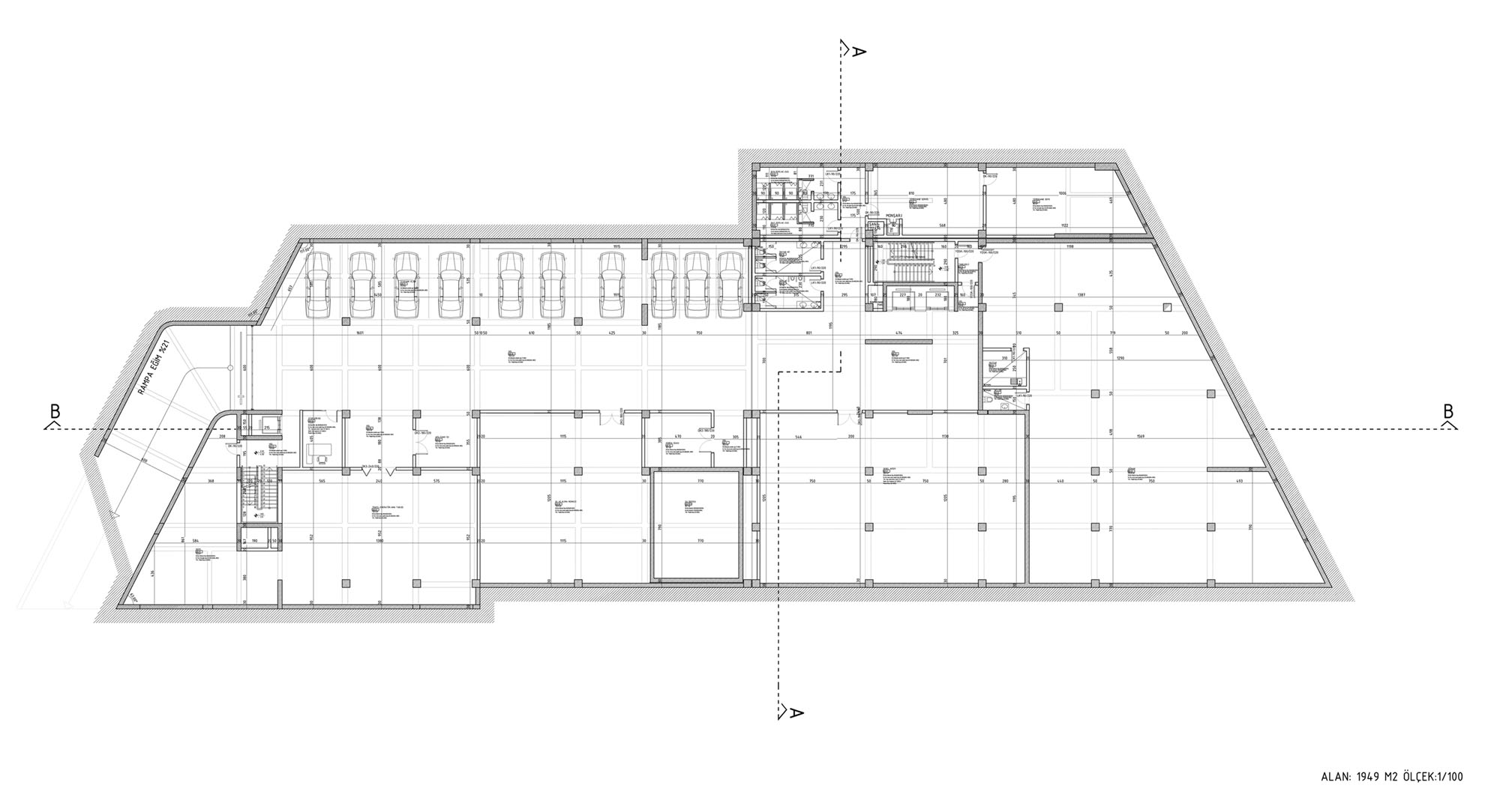
Kadirli Belediye Hizmet Binası ve Kültür Merkezi
Proje Yeri: Osmaniye
Proje Ofisi: İki Artı Bir Mimarlık
Proje Tipi: Kültür Merkezi, Belediye Hizmet Binası
Tasarım Ekibi: Deniz Dokgöz, Ferhat Hacıalibeyoğlu, Orhan Ersan
İşveren: Kadirli Belediyesi
Yardımcı: Turgut Şakiroğlu
Ana Yüklenici: Merksal-Güniş İnş. Tic. San. Ltd. Şti.
Statik Projesi: Methal Mühendislik
Mekanik Projesi: DEG Mühendislik
Elektrik Projesi: Argon Proje
Fotoğraf: Ferhat Hacıalibeyoğlu
Proje Başlangıç Yılı: 2010
Proje Bitiş Yılı: 2010
İnşaat Başlangıç Yılı: 2012
İnşaat Bitiş Yılı: 2013
Arsa Alanı: 6.237 m²
Toplam İnşaat Alanı: 6.610 m²