18/23
Paylaş
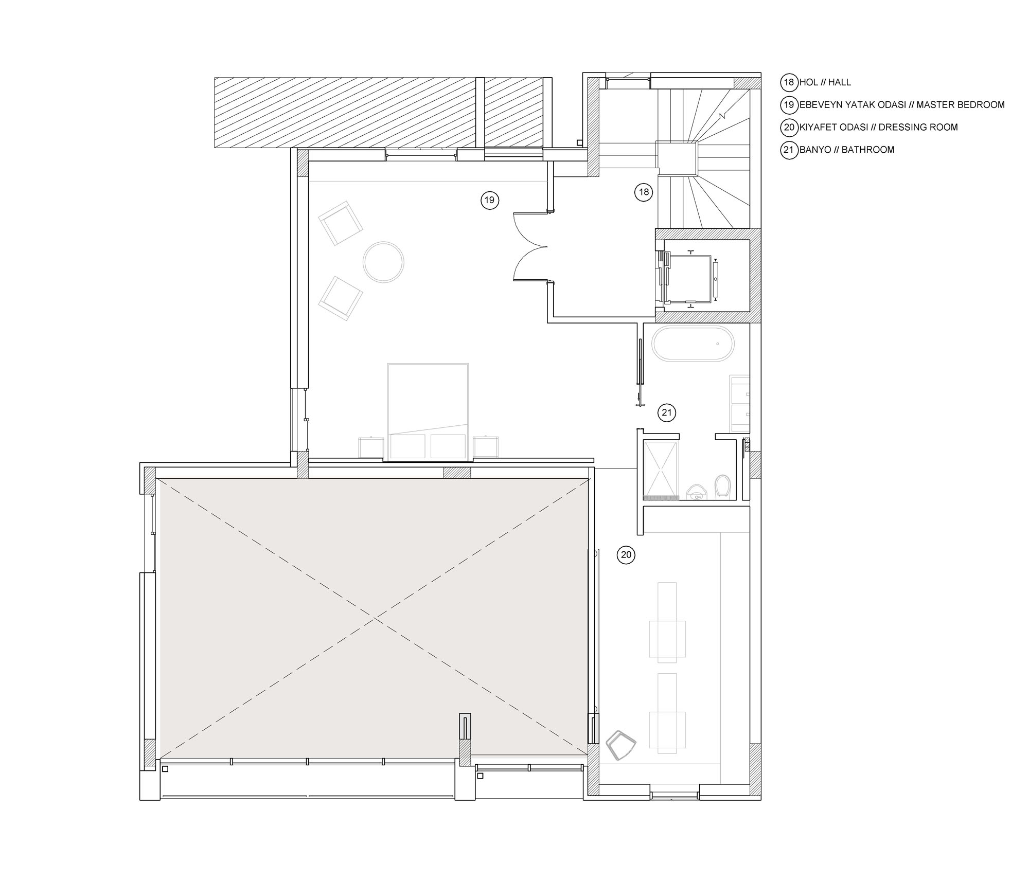
Resmi Orjinal Boyutunda Göster
Tulumlu Evi
Proje Yeri: Ankara
Proje Ofisi: VEN Mimarlık
Proje Tipi: Tek Ev / Villa
Tasarım Ekibi: Gül Güven, Özdihan Gökçe, Recep Aygın, Zeynep Aydın, Gamze Güven
İşveren: Tutumlu Ailesi
Ana Yüklenici: Bergiz İnşaat
Peyzaj Mimarlığı: Selami Demiralp, Promim Çevre Düzenleme, Kentsel Tasarım
İç Mekan Projesi: VEN Mimarlık
Statik Projesi: Konkan Mühendislik
Mekanik Projesi: Bayhan Mühendislik
Elektrik Projesi: Yön Elektrik
Tesisat Projesi: Bayhan Mühendislik
Proje Başlangıç Yılı: 2010
Proje Bitiş Yılı: 2012
İnşaat Başlangıç Yılı: 2012
İnşaat Bitiş Yılı: 2013
Arsa Alanı: 670 m2
Toplam İnşaat Alanı: 500 m2