10/12
Paylaş
Resmi Orjinal Boyutunda Göster
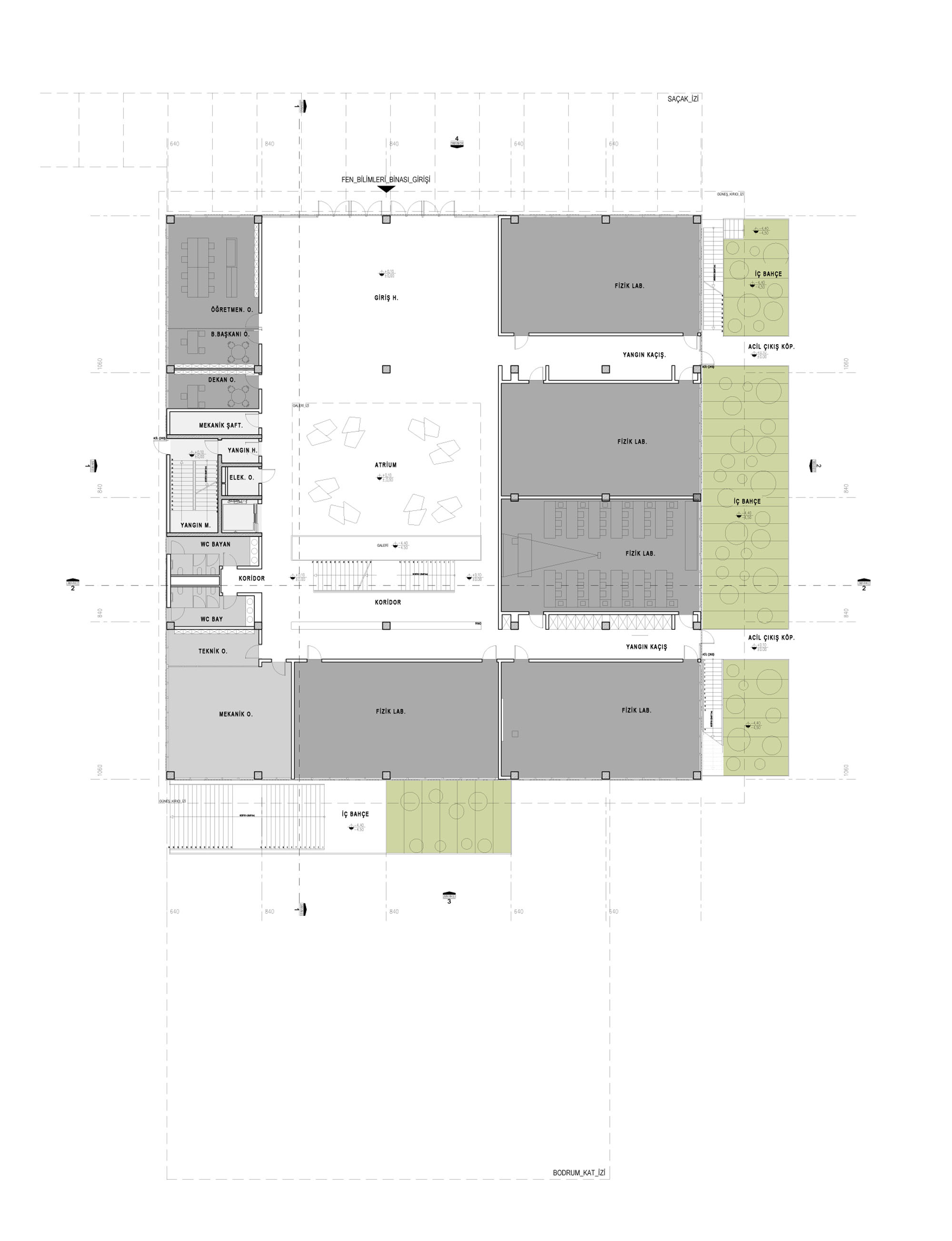
V.K.V. Koç Özel Lisesi Fen Laboratuvarı
Proje Yeri: İstanbul
Proje Ofisi: DB Architects
Proje Tipi: Diğer Eğitim Yapıları
Tasarım Ekibi: Bünyamin Derman
İşveren: V.K.V. Koç Özel İlköğretim Okulu ve Lisesi İktisadi İşletmesi
Yardımcı: Melih Vahidymarian, Hakkı Can Özkan, Serdar Köroğlu, Zeynep Sezin Sever Vural, Taner Üsküplü, Ferhat Bulduk
Ana Yüklenici: ARK İnşaat
İç Mekan Projesi: DB Architects
Proje Yöneticisi: Melih Vahidymarian
Statik Projesi: YBT Yapısal Tasarım Hizmetleri (YBTAS)
Mekanik Projesi: Dinamik Proje Mühendislik
Elektrik Projesi: Aykar Mühendislik
Fotoğraf: Bünyamin Derman
Proje Başlangıç Yılı: 2012
Proje Bitiş Yılı: 2013
İnşaat Başlangıç Yılı: 2012
İnşaat Bitiş Yılı: 2013
Arsa Alanı: 3.650 m²
Toplam İnşaat Alanı: 6.840 m²