16/16
Paylaş
Resmi Orjinal Boyutunda Göster
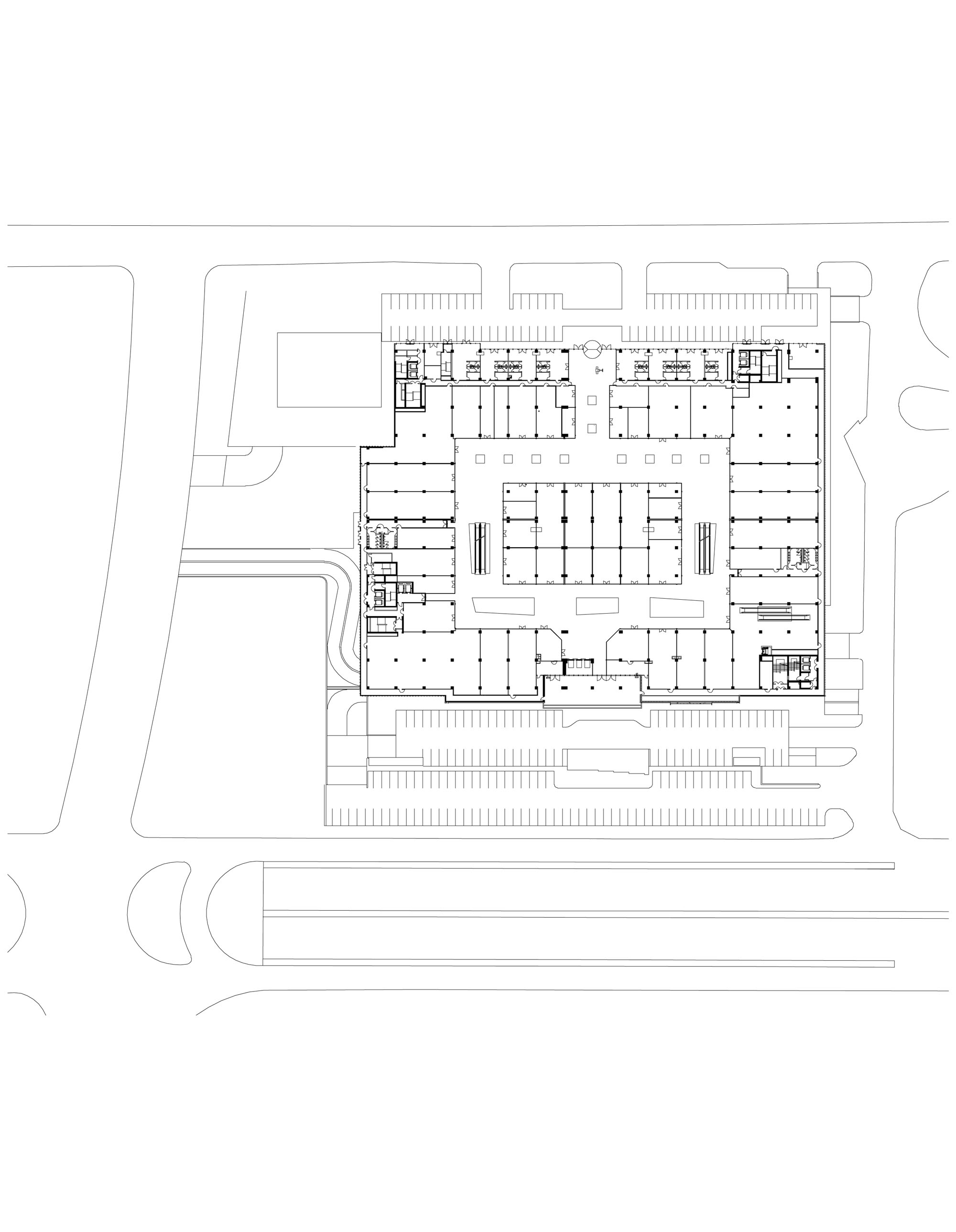
Taurus Alışveriş Merkezi
Proje Yeri: Ankara
Proje Ofisi: A Tasarım Mimarlık
Proje Tipi: Alışveriş Merkezi
Tasarım Ekibi: Ali Osman Öztürk
İşveren: Taurus Holding
Yardımcı: Nil Ece İnce, Hatice Baştabak Kantar, Ceyda Er Çelik, Yasemin Rençber Ünal, Ersin Candan, Erol Engin, Aslı Altıntaş, Harun Karabulut
Ana Yüklenici: Tepe İnşaat
Peyzaj Mimarlığı: Çevre Peyzaj
İç Mekan Projesi: A Tasarım Mimarlık
Proje Yöneticisi: Harun Karabulut
Aydınlatma Projesi: Light-up
Statik Projesi: Yüksel Proje
Mekanik Projesi: Metta Mühendislik
Elektrik Projesi: Yurdakul Mühendislik
Akustik Danışmanı: Mezzo Stüdyo
Yangın Güvenlik Danışmanı: Alara Mühendislik
Fotoğraf: Fethi Mağara
Proje Başlangıç Yılı: 2008
Proje Bitiş Yılı: 2013
İnşaat Başlangıç Yılı: 2011
İnşaat Bitiş Yılı: 2014
Arsa Alanı: 25.940 m²
Toplam İnşaat Alanı: 11.290 m²