11/19
Paylaş
Resmi Orjinal Boyutunda Göster
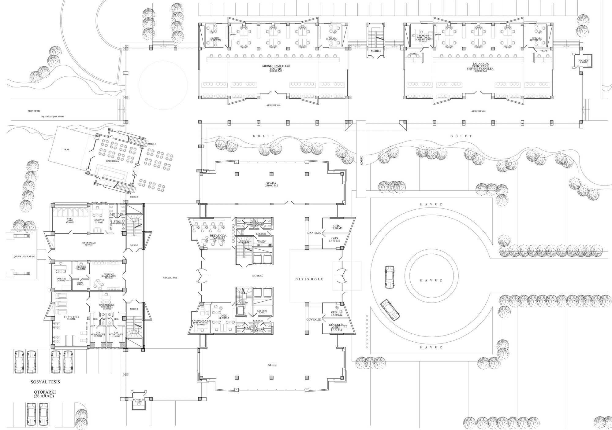
Asat Genel Müdürlük Binası
Proje Yeri: Antalya
Proje Ofisi: Altındal Mimarlık
Proje Tipi: Ofis
Tasarım Ekibi: Şevket Altındal
İşveren: Antalya Büyükşehir Belediyesi
Yardımcı: Erhan Yılmaz
Ana Yüklenici: Akçadağ İnşaat
Statik Projesi: Akın Akıncı
Mekanik Projesi: Taner Tazegül
Elektrik Projesi: Mithat Büyükdurak
Fotoğraf: Şevket Altındal
Proje Başlangıç Yılı: 2005
Proje Bitiş Yılı: 2005
İnşaat Başlangıç Yılı: 2006
İnşaat Bitiş Yılı: 2007
Arsa Alanı: 20.000 m2
Toplam İnşaat Alanı: 22.000 m²