12/13
Paylaş
Resmi Orjinal Boyutunda Göster
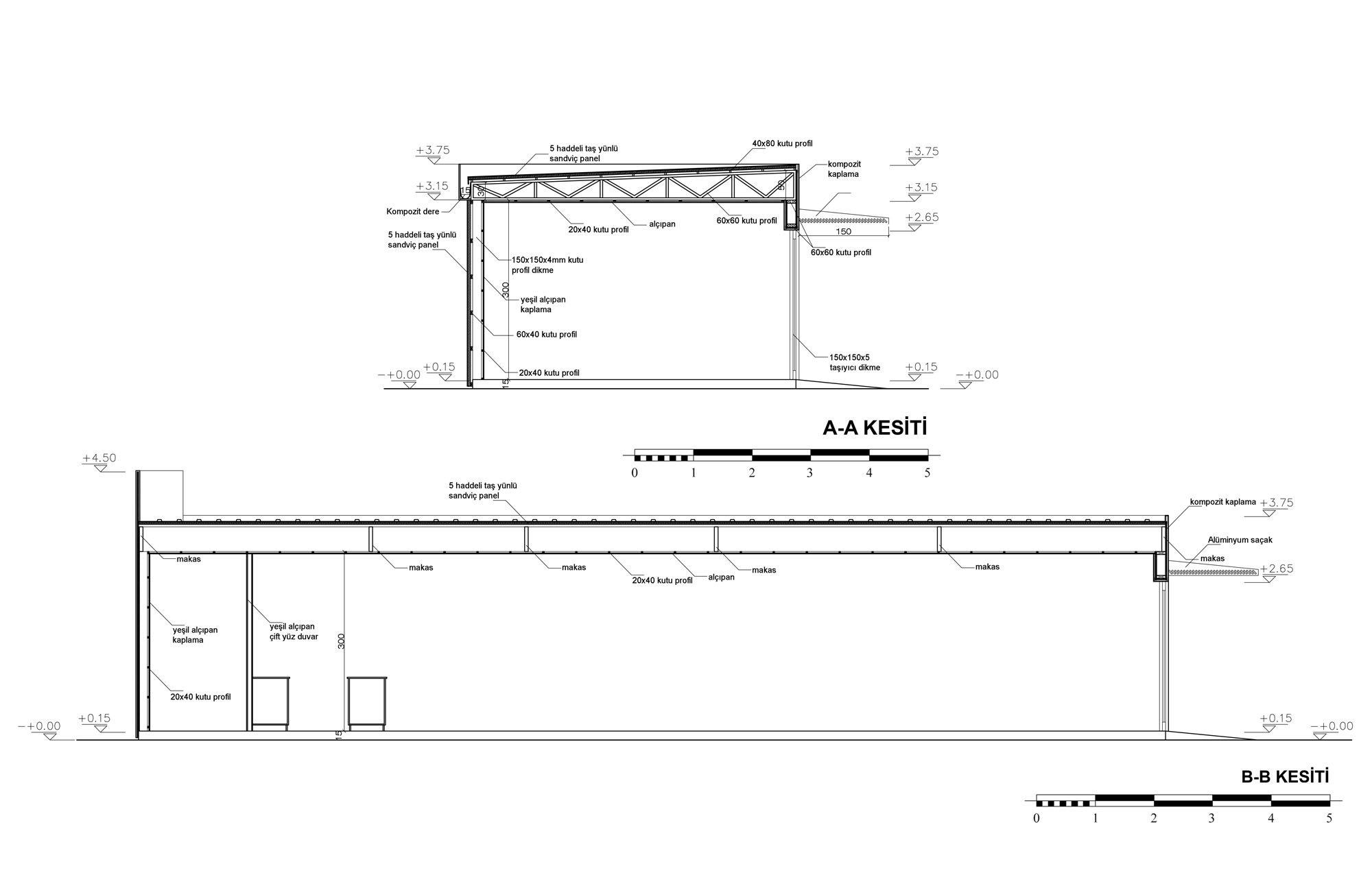
İzmir Gaziemir Havalimanı Kafe
Proje Yeri: İzmir
Proje Ofisi: Arkayın Mimarlık
Proje Tipi: Restoran / Kafe / Bar
Tasarım Ekibi: Tufan Arkayın
İşveren: İzmir Turizm ve Otelcilik
Ana Yüklenici: Arkayın Mimarlık
İç Mekan Projesi: Arkayın Mimarlık
Proje Yöneticisi: Tufan Arkayın
Statik Projesi: Arkayın Mimarlık
Elektrik Projesi: Arkayın Mimarlık
Fotoğraf: Tufan Arkayın
Proje Başlangıç Yılı: 2013
Proje Bitiş Yılı: 2013
İnşaat Başlangıç Yılı: 2013
İnşaat Bitiş Yılı: 2013
Arsa Alanı: 95 m²
Toplam İnşaat Alanı: 95 m²