20/23
Paylaş
Resmi Orjinal Boyutunda Göster
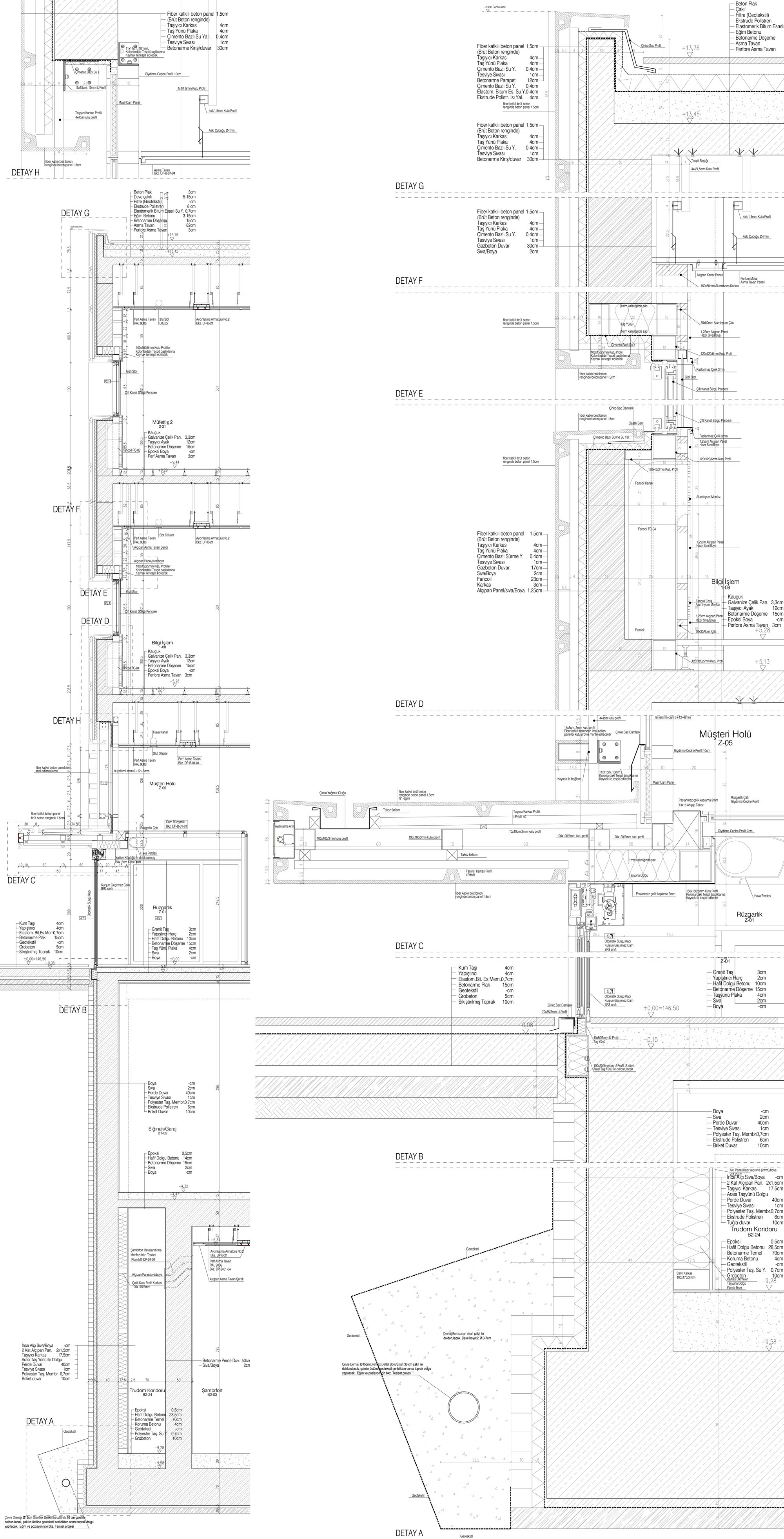
T.C.Merkez Bankası Bursa Şubesi Hizmet ve Lojman Binası
Proje Yeri: Bursa
Proje Ofisi: Denge Mimarlık
Proje Tipi: Konut Sitesi / Grubu
Proje Tipi Grubu: Konut
Tasarım Ekibi: Emine Didem Durakbaşa, Ömer Selçuk Baz
İşveren: Türkiye Cumhuriyet Merkez Bankası (TCMB)
Danışman: Walter Stelzhammer
Ana Yüklenici: Ordem Yapı
Proje Yöneticisi: Cevdet Göğüslü
Statik Projesi: Probi Mühendislik
Mekanik Projesi: Öcen Mühendislik
Elektrik Projesi: Öneren Proje ve Mühendislik
Fotoğraf: Cihan Poçan
Proje Başlangıç Yılı: 2005
Proje Bitiş Yılı: 2006
İnşaat Başlangıç Yılı: 2008
İnşaat Bitiş Yılı: 2013
Arsa Alanı: 3.600 m²
Toplam İnşaat Alanı: 4.900 m²