24/36
Paylaş
Resmi Orjinal Boyutunda Göster
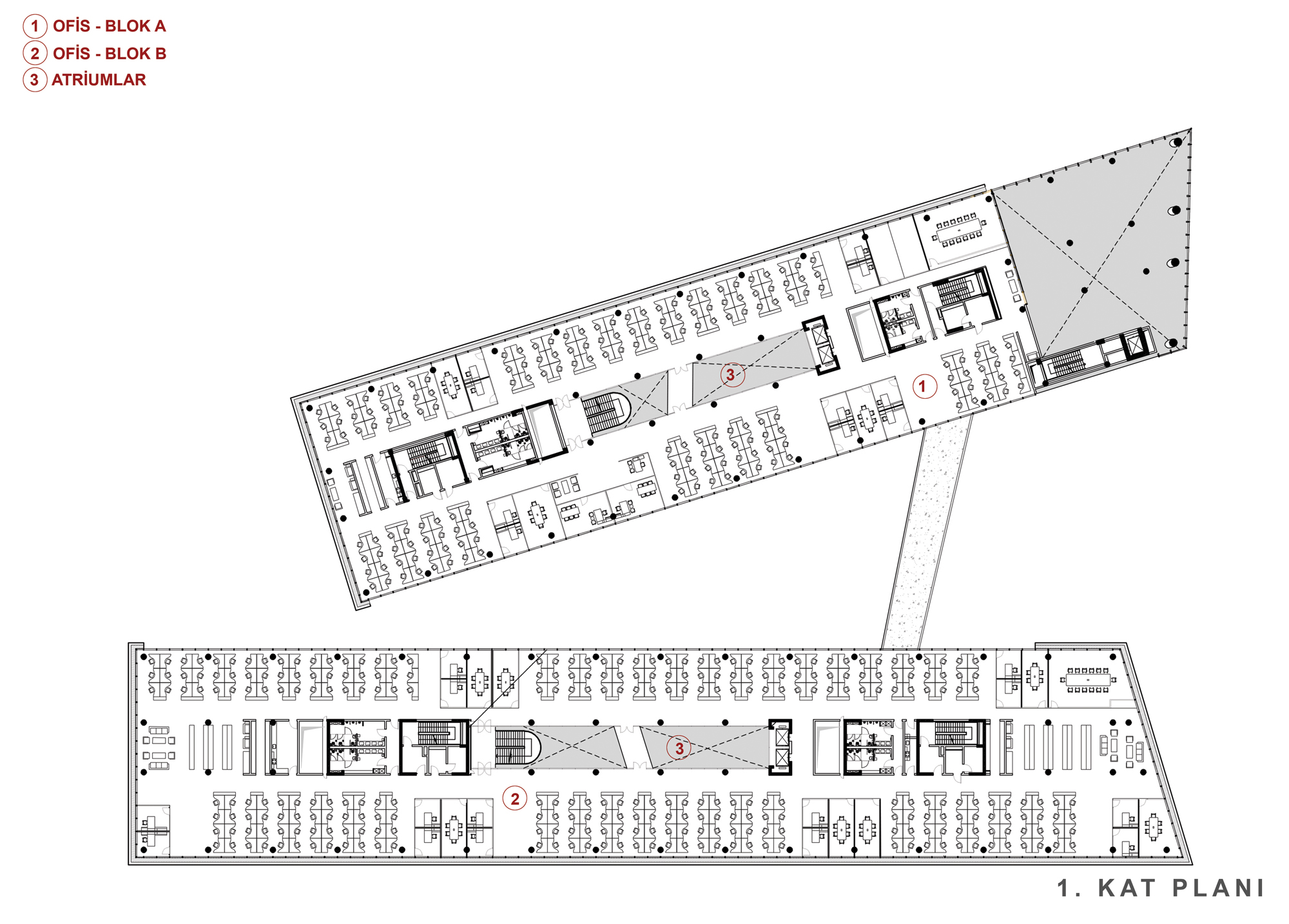
Ford Otosan Mühendislik Merkezi
Proje Yeri: İstanbul
Proje Ofisi: TeCe Mimarlık
Proje Tipi: Ar-Ge Binası
Proje Tipi Grubu: Endüstriyel
Tasarım Ekibi: Tülin Hadi, Cem İlhan, Sezin Beldağ, Sedef Zorbozan, Aydoğan Özsoy, Keriman Afyonlu, Fabio Ribeiro
İşveren: Ford Otosan AŞ
Ana Yüklenici: ARK İnşaat
Peyzaj Mimarlığı: DS Mimarlık
Aydınlatma Projesi: ERKE Sürdürülebilir Bina Tasarım Danışmanlık
Statik Projesi: Arup
Mekanik Projesi: ENAR Mühendislik
Elektrik Projesi: ERKE Sürdürülebilir Bina Tasarım Danışmanlık
Fotoğraf: Murat Germen
Proje Başlangıç Yılı: 2013
Proje Bitiş Yılı: 2013
İnşaat Başlangıç Yılı: 2013
İnşaat Bitiş Yılı: 2015
Arsa Alanı: 17.200 m²
Toplam İnşaat Alanı: 35.000 m²