21/27
Paylaş
Resmi Orjinal Boyutunda Göster
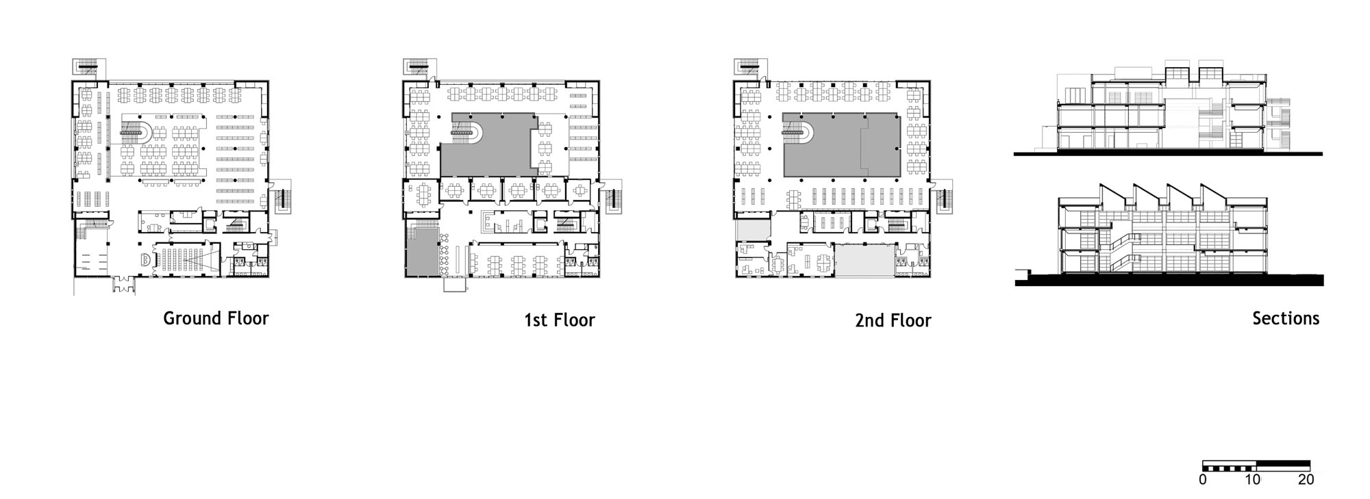
Odtü KKTC Rektörlük
Project Location: Güzelyurt, Kuzey Kıbrıs Türk Cumhuriyeti (KKTC)
Project Office: TeCe Mimarlık
Project Type: Higher Education Building
Tasarım Ekibi: Cem İlhan, Tülin Hadi, Zeynep Ataş, Arcan Aksakaloğu, Münevver Dinand, Özlem Türker
Employer: Orta Doğu Teknik Üniversitesi (ODTÜ)
Peyzaj Mimarlığı: TeCe Mimarlık
Lighting Project: Atelier M, Osman Eminel
Structural Project: YBT Yapısal Tasarım Hizmetleri (YBTAS), Yusuf Tımbır, Atelier M, Umut Türker
Mechanical Project: Abdullah Bilgin, Yunus Terlik
Electrical Project: Atelier M, Osman Eminel
Project End Date: 2003
Construction End Date: 2005
Total Construction Area: 11.000 m²