1/12
Paylaş
Resmi Orjinal Boyutunda Göster
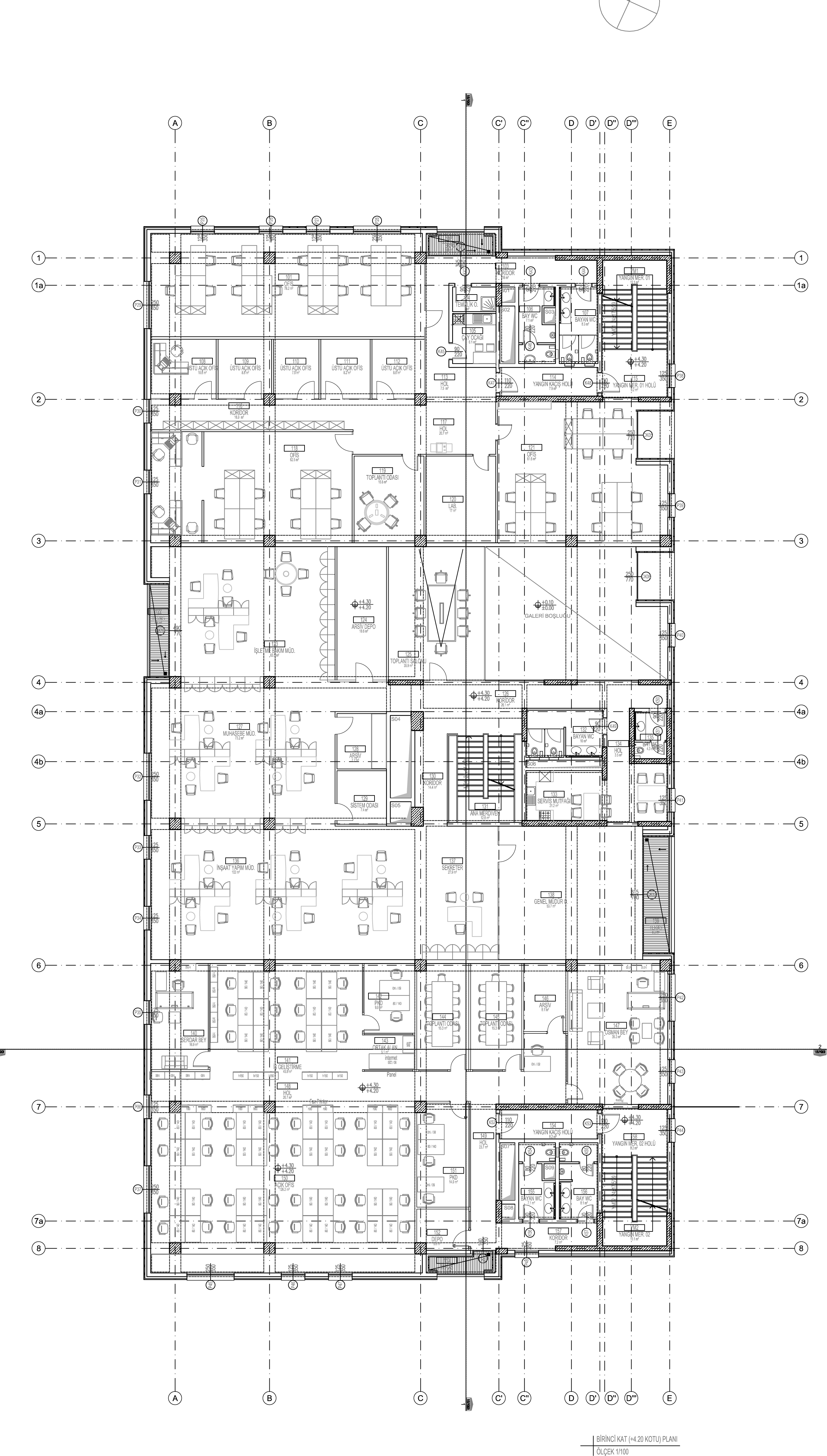
Satgeb 2 Titanyum Ar-Ge Binası
Proje Yeri: Ankara
Proje Ofisi: TeCe Mimarlık
Proje Tipi: Ar-Ge Binası
Tasarım Ekibi: Cem İlhan, Tülin Hadi, Keriman Afyonlu, Aydoğan Özsoy, Sezgin Bilgin, Emine Derya Ertan
İşveren: Orta Doğu Teknik Üniversitesi (ODTÜ)
Ana Yüklenici: Ebi A.Ş.
Peyzaj Mimarlığı: TeCe Mimarlık
Aydınlatma Projesi: TeCe Mimarlık
Statik Projesi: Kenan Özbek
Mekanik Projesi: Abdullah Bilgin
Elektrik Projesi: Kemal Güravşar
Proje Bitiş Yılı: 2011
İnşaat Bitiş Yılı: 2012
Toplam İnşaat Alanı: 7.000 m2