18/24
Paylaş
Resmi Orjinal Boyutunda Göster
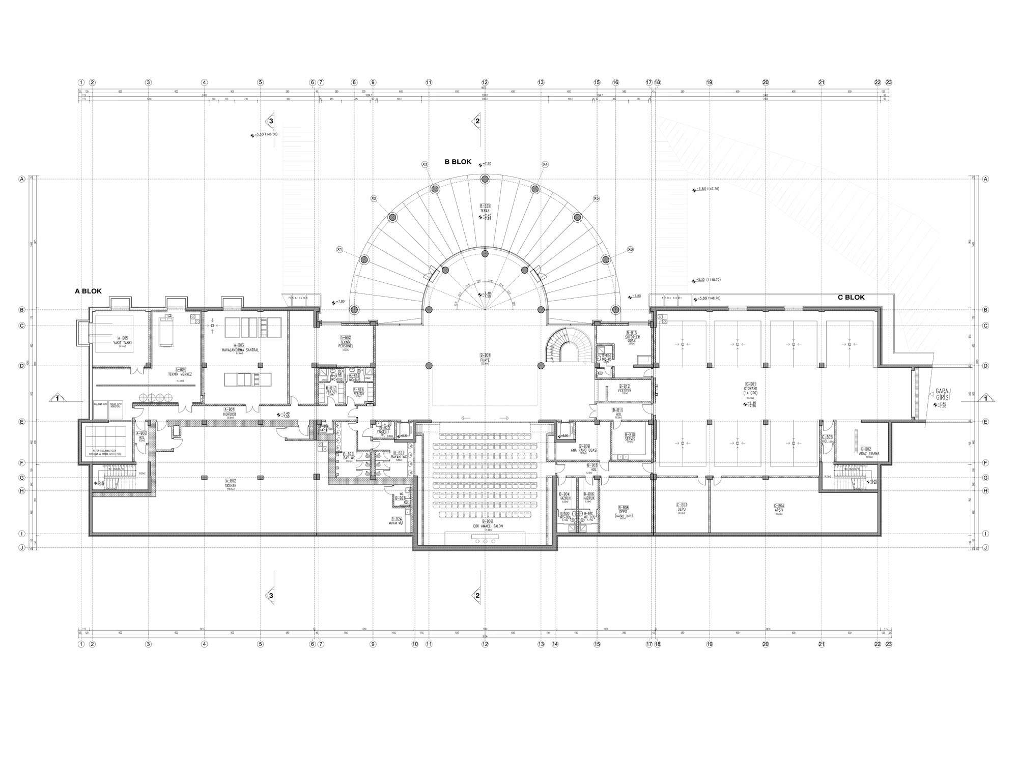
Atılım Üniversitesi İdari Binası
Proje Yeri: Gölbaşı, Ankara
Proje Ofisi: Uz Mimarlık Atölyesi
Proje Tipi: Yüksek Öğretim Yapısı
Tasarım Ekibi: Mehmet Soylu, Mete Öz, Övünç Tarakçıoğlu
İşveren: Atılım Üniversitesi
Yardımcı: Şentürk Topçuoğlu, Abdulkadir Yılmaz, Yasin Bulut, Mustafa Zeytin, Alper Perçin
Ana Yüklenici: Atılım Üniversitesi İnşaat Bölümü
Peyzaj Mimarlığı: Atılım Üniversitesi İnşaat Bölümü
İç Mekan Projesi: Uz Mimarlık Atölyesi, Atılım Üniversitesi İnşaat Bölümü
Proje Yöneticisi: Levent Balcı
Statik Projesi: Fatih Altınok, Minsa İnşaat
Mekanik Projesi: Melih Özüner, YMT Mühendislik
Elektrik Projesi: Özgür Ulupınar, Yurdakul Mühendislik
Tesisat Projesi: Melih Özüner, YMT Mühendislik
Fotoğraf: Gücügür Görkay
Proje Başlangıç Yılı: 2010
Proje Bitiş Yılı: 2011
İnşaat Başlangıç Yılı: 2011
İnşaat Bitiş Yılı: 2013
Toplam İnşaat Alanı: 6.338 m²