27/30
Paylaş
Resmi Orjinal Boyutunda Göster
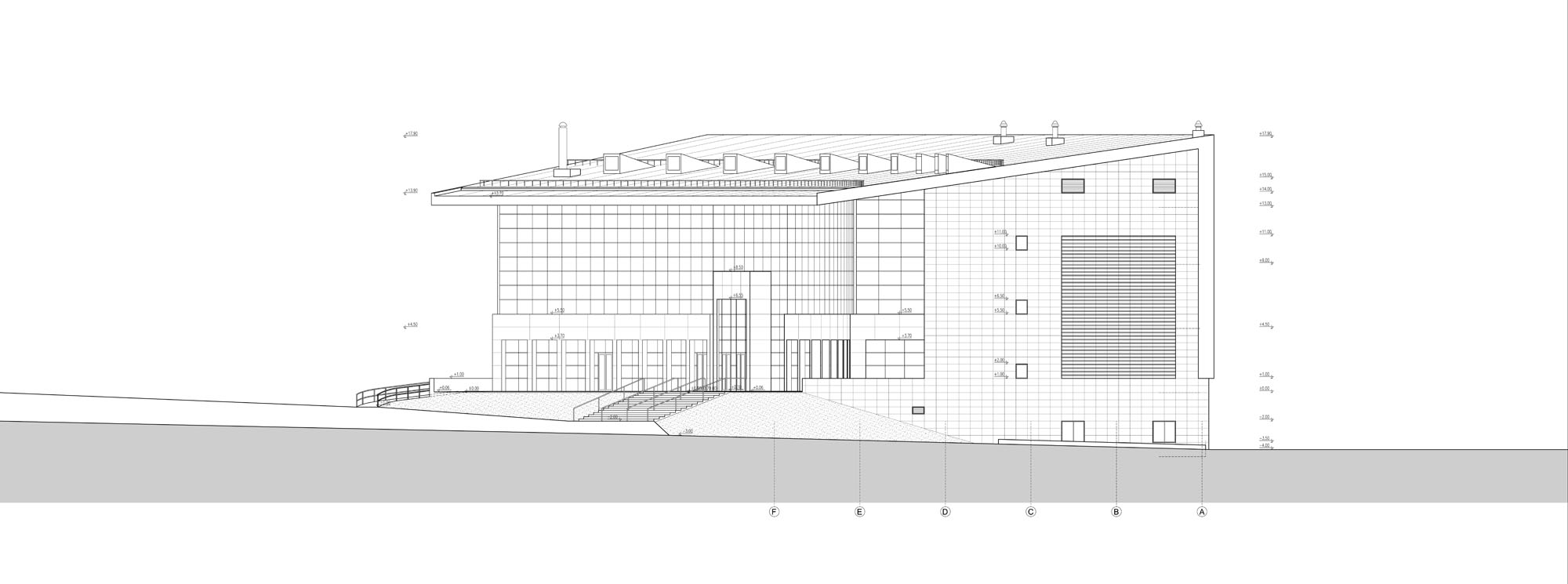
Atılım Üniversitesi Merkez Kütüphane Binası
Project Location: Gölbaşı
Project Office: Uz Mimarlık Atölyesi
Project Type: Library
Tasarım Ekibi: Mehmet Soylu, Mete Öz, Övünç Tarakçıoğlu
Employer: Atılım Üniversitesi
Yardımcı: Şentürk Topçuoğlu, Abdulkadir Yılmaz, Yasin Bulut, Mustafa Zeytin, Alper Perçin
Ana Yüklenici: Atılım Üniversitesi İnşaat Bölümü
Peyzaj Mimarlığı: Atılım Üniversitesi İnşaat Bölümü
Interior Architecture: Uz Mimarlık Atölyesi, Atılım Üniversitesi İnşaat Bölümü
Projcet Manager: Levent Balcı
Structural Project: Fatih Altınok, Minsa İnşaat
Mechanical Project: Melih Özüner, YMT Mühendislik
Electrical Project: Özgür Ulupınar, Yurdakul Mühendislik
Plumbing Project: Melih Özüner, YMT Mühendislik
Photography: Gücügür Görkay
Project Start Date: 2010
Project End Date: 2011
Construction Start Date: 2011
Construction End Date: 2013
Total Construction Area: 7.737 m²