12/13
Paylaş
Resmi Orjinal Boyutunda Göster
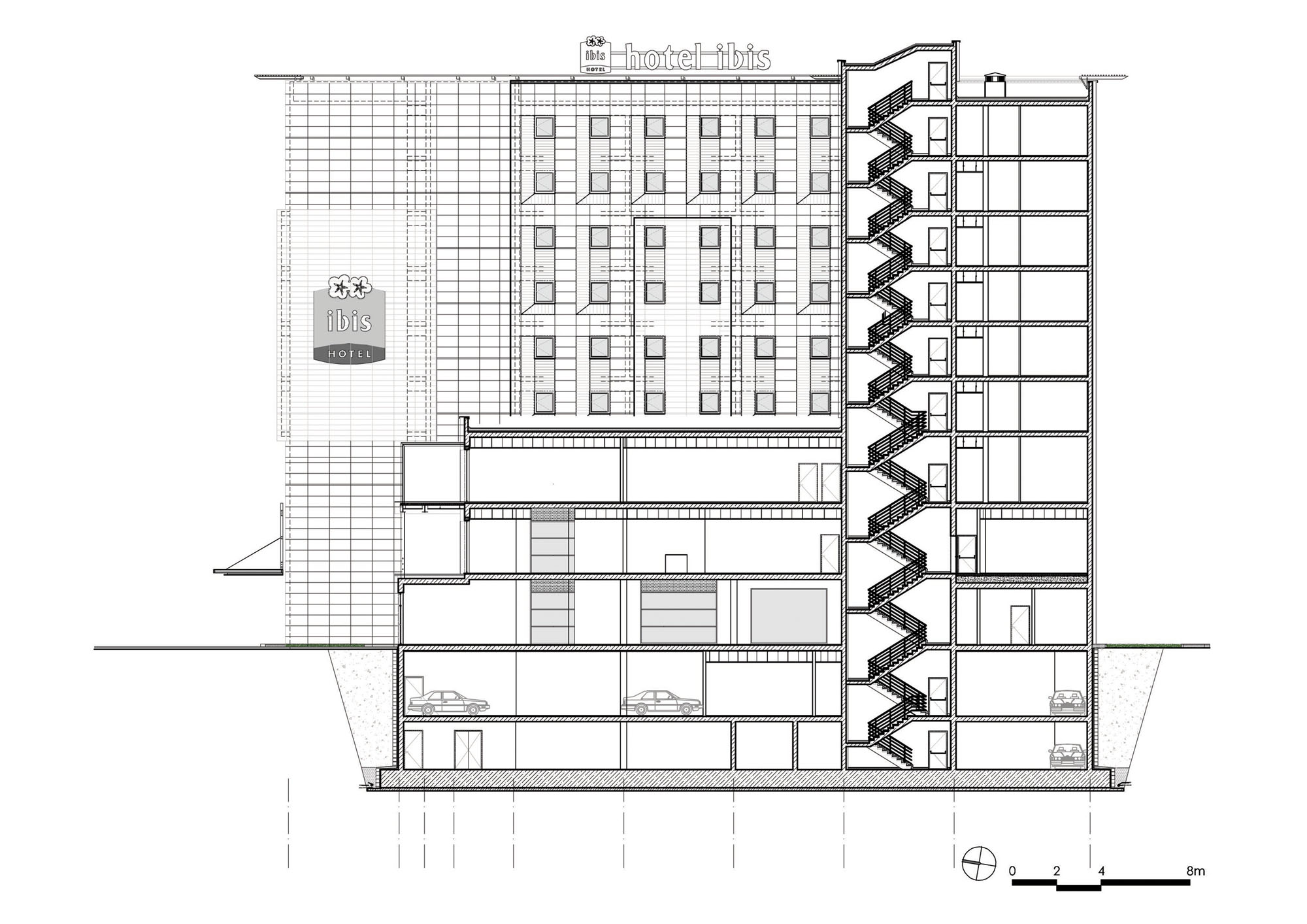
İbis Otel Adana
Proje Yeri: Seyhan, Adana
Proje Ofisi: YPM
Proje Tipi: Otel / Motel
Tasarım Ekibi: R. Güneş Gökçek
İşveren: Akfen GYO
Yardımcı: Hatice Baştabak Kantar, Bora Yıldırım, Birkan Sevinç, Artem Kolomeichuk, Emre Şahin, Mustafa Taşdemir
Peyzaj Mimarlığı: Altuğ Gönencen, Erkan Erdoğan
Statik Projesi: YPT, Gökhan Tunç, Ali Ruzi Özuygur
Mekanik Projesi: YPT, Gökhan Bulut
Elektrik Projesi: YPT, Dilek Akmeşe
Akustik Danışmanı: Duyal Karagözoğlu
Yangın Güvenlik Danışmanı: Abdurrahman Kılıç, Kazım Beceren
Proje Başlangıç Yılı: 2010
Proje Bitiş Yılı: 2011
İnşaat Başlangıç Yılı: 2011
İnşaat Bitiş Yılı: 2012
Arsa Alanı: 2.213 m²
Toplam İnşaat Alanı: 9.050 m²