16/20
Paylaş
Resmi Orjinal Boyutunda Göster
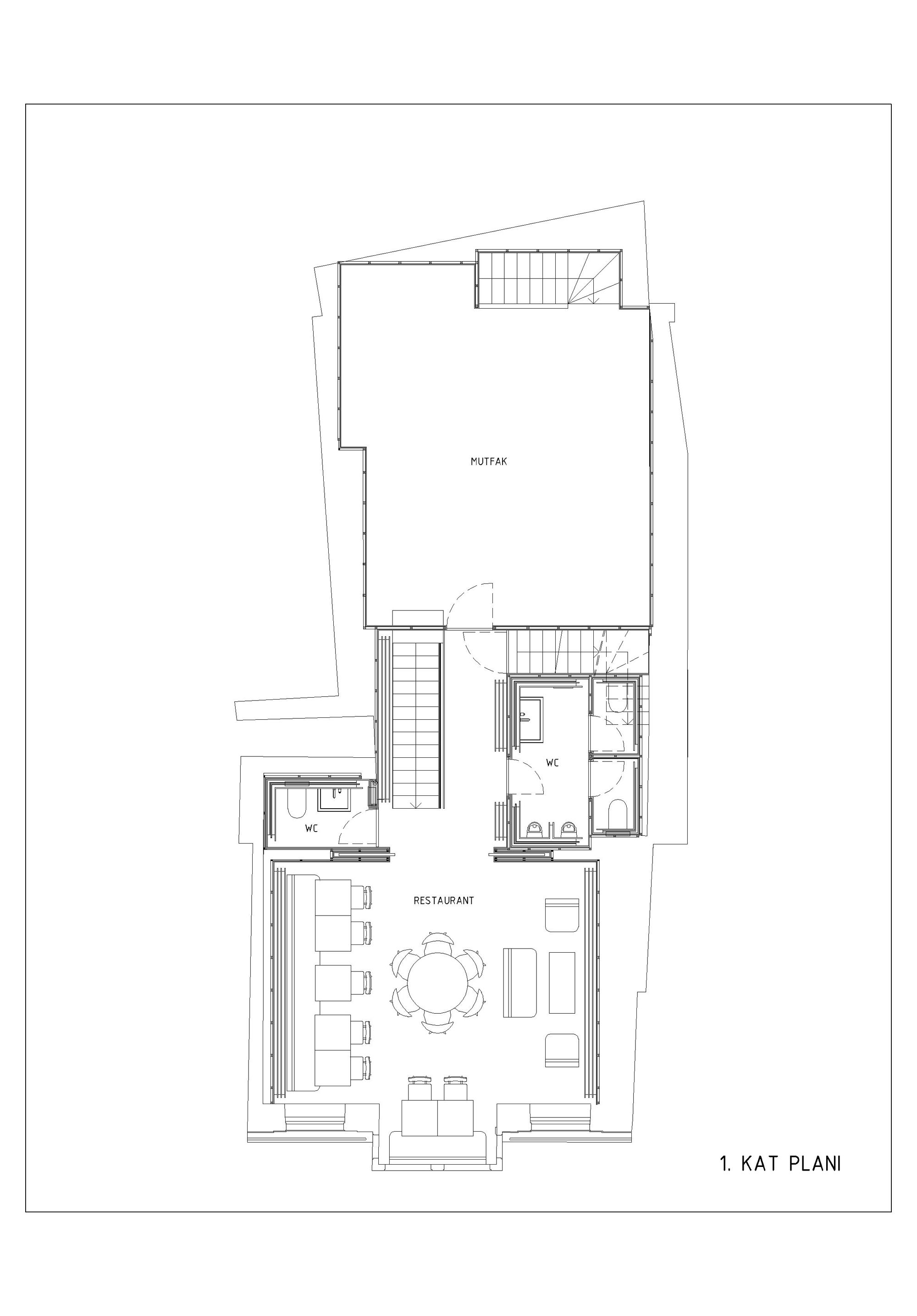
Gaspar
Proje Yeri: Beyoğlu, İstanbul
Proje Ofisi: Autoban
Proje Tipi: Restoran / Kafe / Bar
Tasarım Ekibi: Seyhan Özdemir, Sefer Çağlar, Kerem Özerler, Zeynep Akten, Müge Çakır, Kerim Özkan
İşveren: Ferit Sarper
İç Mekan Projesi: Autoban
Statik Projesi: Procon Yapı İnşaat ve Mühendislik Hizmetleri Tic. Ltd. Şti.
Fotoğraf: Sergio Ghetti
Proje Başlangıç Yılı: 2013
Proje Bitiş Yılı: 2013
İnşaat Başlangıç Yılı: 2013
İnşaat Bitiş Yılı: 2013
Arsa Alanı: 140 m2
Toplam İnşaat Alanı: 400 m2