22/24
Paylaş
Resmi Orjinal Boyutunda Göster
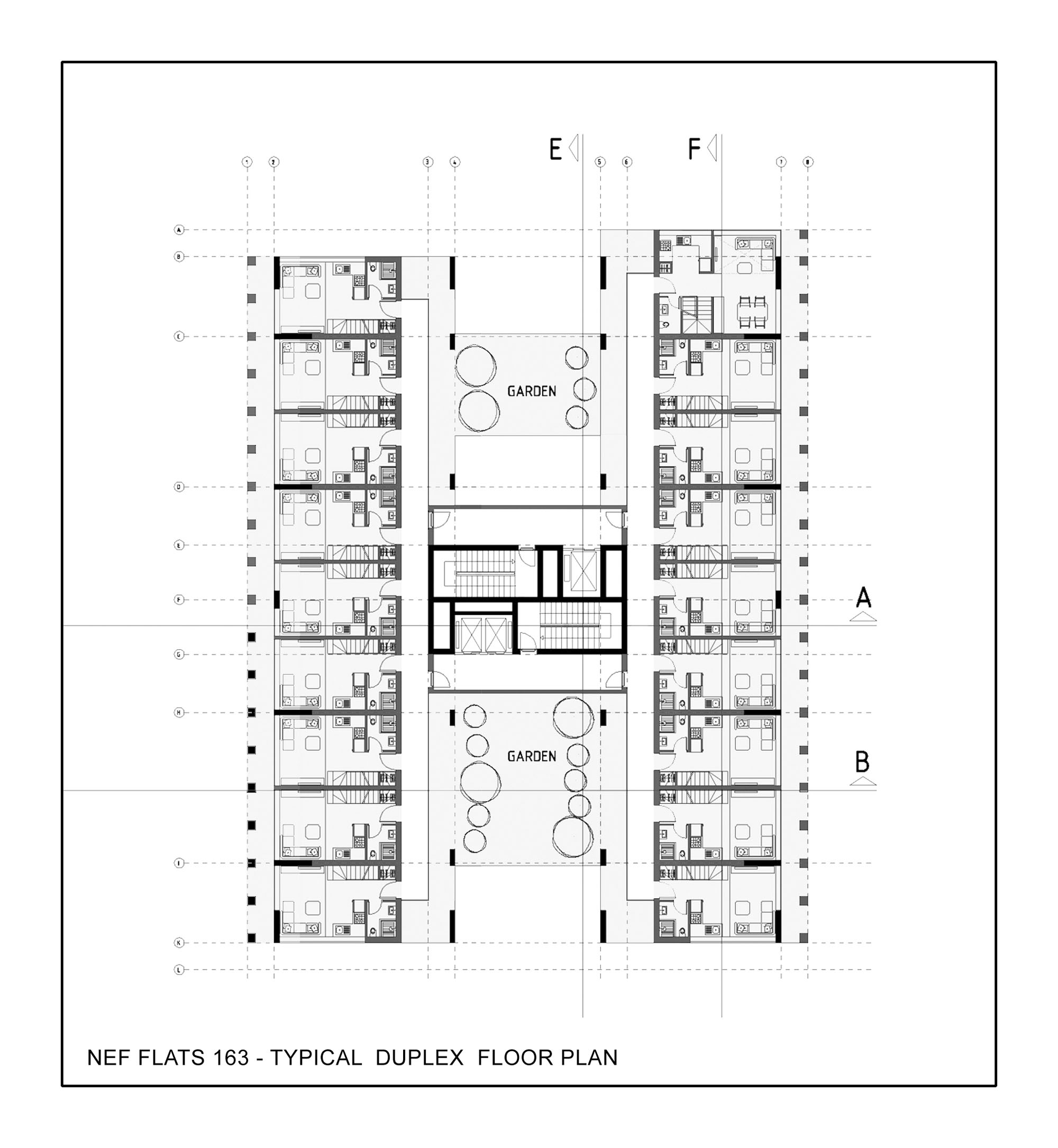
NEF 163
Project Location: Beşiktaş, İstanbul
Project Office: Autoban
Project Type: Apartment
Tasarım Ekibi: Seyhan Özdemir, Sefer Çağlar, Gökhan Uzun, Kerim Özkan
Ana Yüklenici: Timur Gayrimenkul
Interior Architecture: Autoban
Structural Project: GHC Mühendislik
Photography: Sergio Ghetti
Project Start Date: 2010
Project End Date: 2013
Construction Start Date: 2010
Construction End Date: 2013
Building Plot Area: 4.400 m²
Total Construction Area: 51.620 m²