32/32
Paylaş
Resmi Orjinal Boyutunda Göster
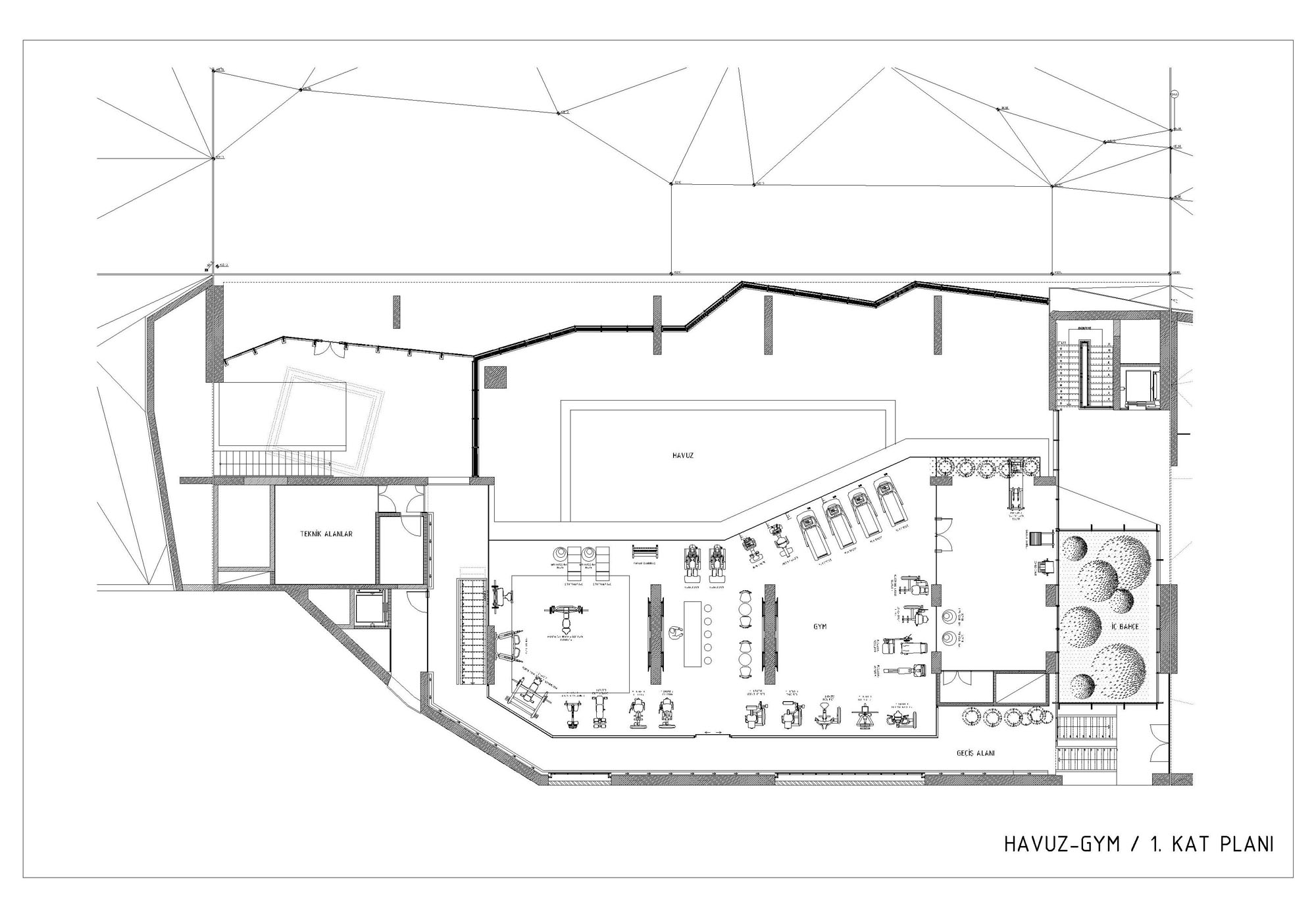
Savoy Ulus
Proje Yeri: Beşiktaş, İstanbul
Proje Ofisi: Autoban
Proje Tipi: Restoran / Kafe / Bar, Kapalı Yüzme Havuzu, Spor Salonu
Tasarım Ekibi: Seyhan Özdemir, Sefer Çağlar, Bilal Aydın, Zeynep Akten, Müge Çakır, Avni Alçın, Sedef Gökçe, Kerim Özkan
İşveren: Çarmıklı-Saruhan Ortaklığı
Ana Yüklenici: Savoy Gayrimenkul
İç Mekan Projesi: Autoban
Statik Projesi: İsmet Babuş Mühendislik
Fotoğraf: Ali Bekman Photography
Proje Başlangıç Yılı: 2012
Proje Bitiş Yılı: 2013
İnşaat Başlangıç Yılı: 2012
İnşaat Bitiş Yılı: 2013
Arsa Alanı: 1.150 m²
Toplam İnşaat Alanı: 1.600 m²