18/18
Paylaş
Resmi Orjinal Boyutunda Göster
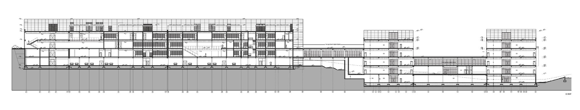
Teknopark
Proje Yeri: İstanbul
Proje Ofisi: Bütüner Mimarlık
Proje Tipi: Ar-Ge Binası
Tasarım Ekibi: Hüseyin Bütüner, Işıl Sencar Ertosun
İşveren: Teknopark İstanbul
Yardımcı: Berna Kerimoğlu, Sevdil Coşkun Aydoğan, Hatice Baştabak Kantar, Aslı Çağlar, Gülcan Ozan, Deniz Özçelik, Burcu Bilgenoğlu Umur , Deniz Hıdıroğlu, Tülin Göçer Munzur, Tulu Tohumcu
Statik Projesi: Taylan Karabey
Mekanik Projesi: Onur Tuğa, Ayhan Coda
Elektrik Projesi: Dilek Dörter
Fotoğraf: Sercan Altınbaş, Gökhan Çelebi
Proje Başlangıç Yılı: 2011
Proje Bitiş Yılı: 2011
İnşaat Başlangıç Yılı: 2011
İnşaat Bitiş Yılı: 2013
Arsa Alanı: 44.750 m²
Toplam İnşaat Alanı: 60.000 m2