23/26
Paylaş
Resmi Orjinal Boyutunda Göster
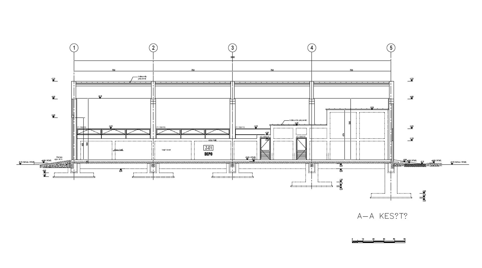
AGE Denizli DGS Depo Binası
Proje Yeri: Denizli, Sarayköy
Proje Ofisi: Defne Önen Mimarlık
Proje Tipi: Diğer Endüstri Yapıları
Proje Tipi Grubu: Endüstriyel
Tasarım Ekibi: A. Defne Önen
İşveren: AGE Denizli Doğalgaz Elektrik Üretim AŞ
Ana Yüklenici: AGE İnşaat ve Ticaret AŞ
Statik Projesi: Depas Prefabrik, Burak Eminağa
Proje Bitiş Yılı: 2011
İnşaat Başlangıç Yılı: 2011
İnşaat Bitiş Yılı: 2013
Arsa Alanı: 564 m²
Toplam İnşaat Alanı: 564 m²