53/56
Paylaş
Resmi Orjinal Boyutunda Göster
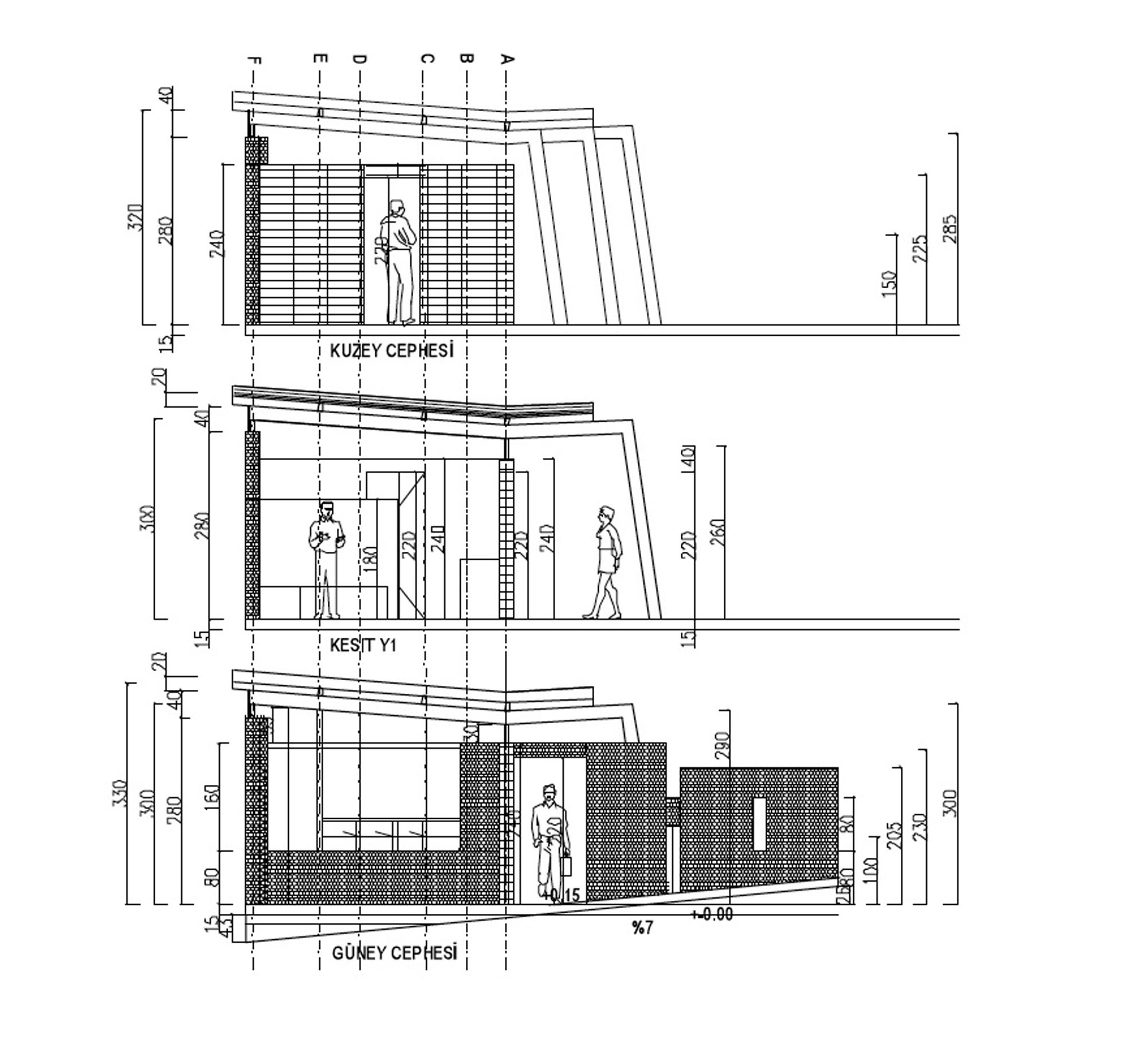
AGE Denizli DGS Giriş Güvenlik Yapısı
Proje Yeri: Denizli, Sarayköy
Proje Ofisi: Defne Önen Mimarlık
Proje Tipi: Diğer Endüstri Yapıları
Proje Tipi Grubu: Endüstriyel
Tasarım Ekibi: A. Defne Önen
İşveren: AGE Denizli Doğalgaz Elektrik Üretim AŞ
Ana Yüklenici: AGE İnşaat ve Ticaret AŞ
Statik Projesi: Burak Eminağa
Fotoğraf: Çiçek Önen, A. Defne Önen
Proje Başlangıç Yılı: 2013
Proje Bitiş Yılı: 2013
İnşaat Başlangıç Yılı: 2013
İnşaat Bitiş Yılı: 2013
Arsa Alanı: 38 m²
Toplam İnşaat Alanı: 38 m²