80/84
Paylaş
Resmi Orjinal Boyutunda Göster
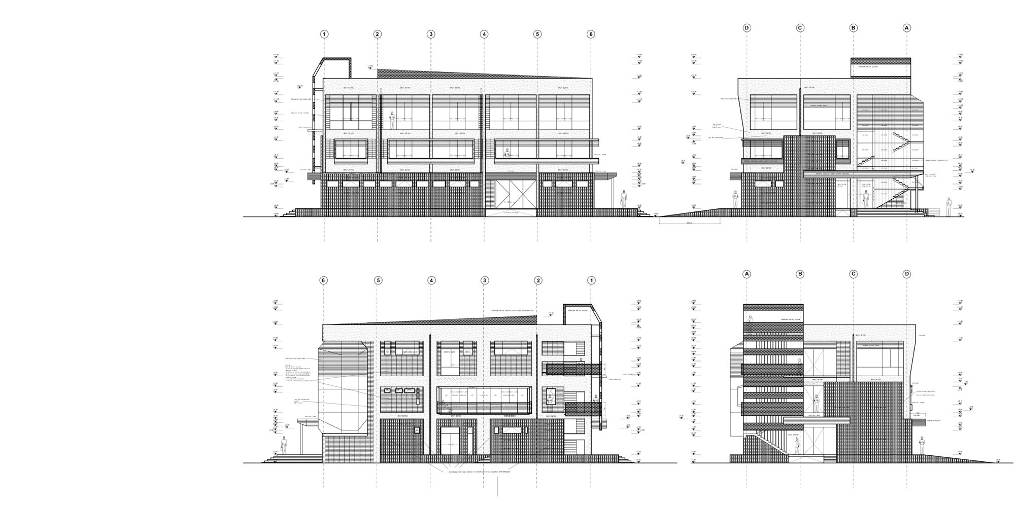
AGE Denizli DGS Kontrol Binası
Proje Yeri: Denizli, Sarayköy
Proje Ofisi: Defne Önen Mimarlık
Proje Tipi: Diğer Endüstri Yapıları
Proje Tipi Grubu: Endüstriyel
Tasarım Ekibi: A. Defne Önen
İşveren: AGE İnşaat ve Ticaret AŞ
Ana Yüklenici: AGE İnşaat ve Ticaret AŞ
Statik Projesi: Can Binzet Mühendislik
Fotoğraf: Çiçek Önen, A. Defne Önen
Proje Başlangıç Yılı: 2010
Proje Bitiş Yılı: 2011
İnşaat Başlangıç Yılı: 2011
İnşaat Bitiş Yılı: 2013
Arsa Alanı: 426 m²
Toplam İnşaat Alanı: 1.278 m²