36/40
Paylaş
Resmi Orjinal Boyutunda Göster
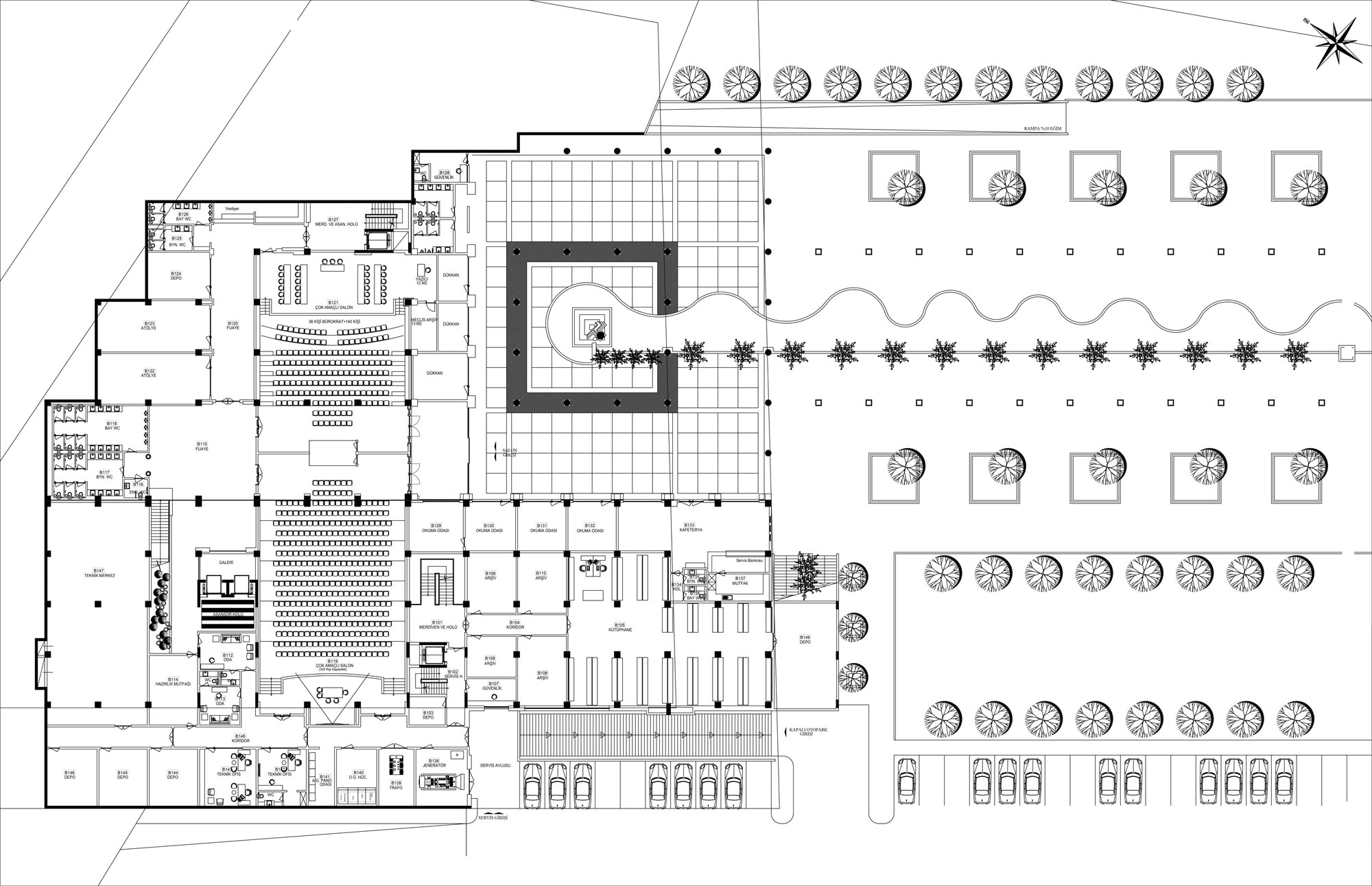
Konyaaltı Belediyesi Hizmet Binası
Proje Yeri: Antalya
Proje Ofisi: OB Mimarlık Ofisi, Altındal Mimarlık
Proje Tipi: Belediye Hizmet Binası
Tasarım Ekibi: Bilal Ateş, Şevket Altındal
İşveren: Konyaaltı Belediyesi
Danışman: Oya Güher Ateş
Yardımcı: Funda Alyanak Kaya
Ana Yüklenici: Talip İnşaat Ltd. Şti. Turem Başer İş Ort.
Statik Projesi: Cenani Yılmaz
Mekanik Projesi: Taner Tazegül
Elektrik Projesi: Birol Karaca
Fotoğraf: Bilal Ateş
Proje Başlangıç Yılı: 2009
Proje Bitiş Yılı: 2011
İnşaat Başlangıç Yılı: 2011
İnşaat Bitiş Yılı: 2013
Arsa Alanı: 13.600 m²
Toplam İnşaat Alanı: 13.725 m²