14/19
Paylaş
Resmi Orjinal Boyutunda Göster
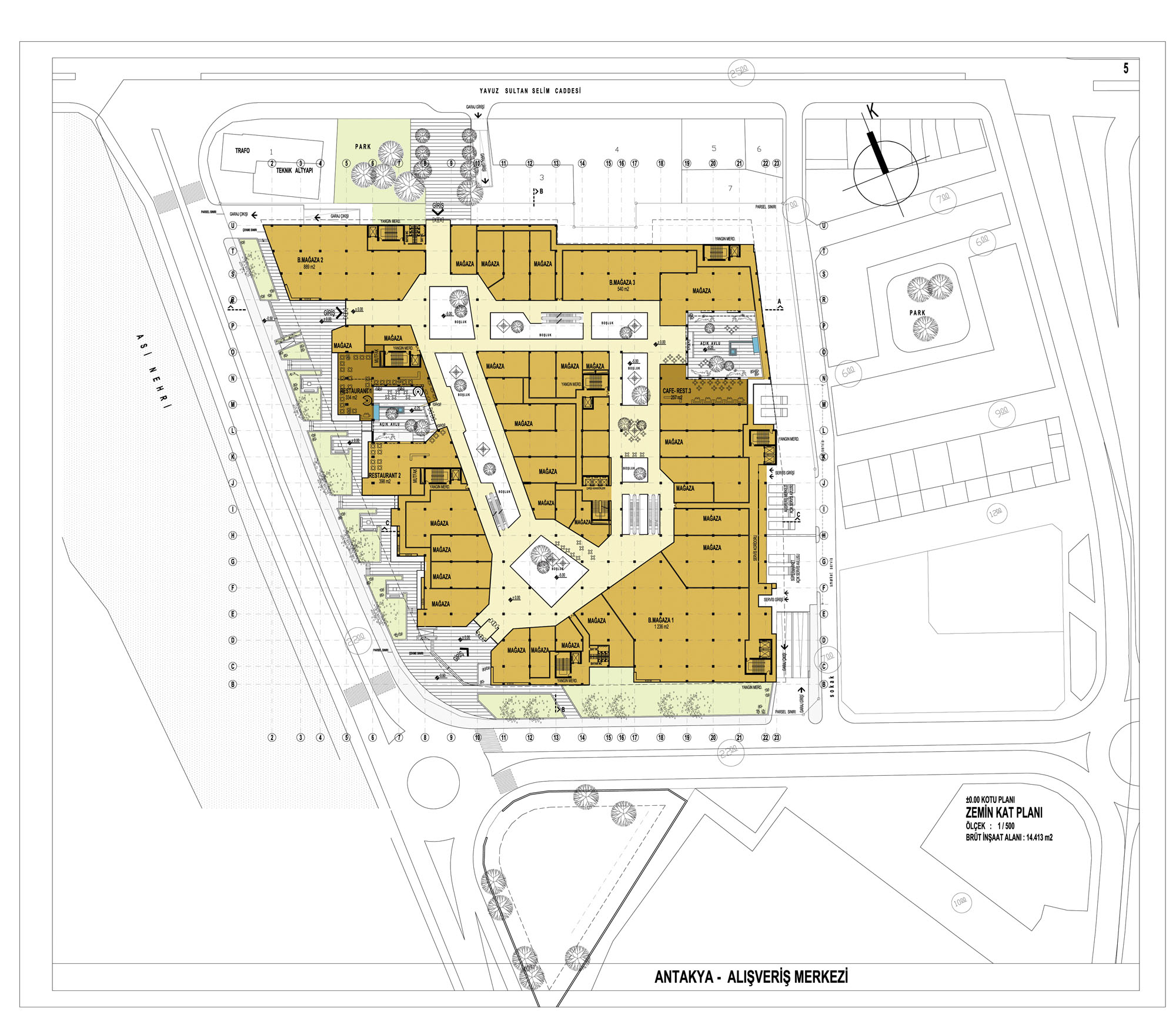
Antakya Palladium Avm
Proje Yeri: Antakya
Proje Ofisi: Ergün Mimarlık
Proje Tipi: Alışveriş Merkezi
Tasarım Ekibi: Ender Ergün, Cavit Özgür Ergün, Servet Ünver, Eser Ergün, Hülya Erdoğan, Çiğdem Tülay, Dolunay Vardar
İşveren: Dost İnşaat
Ana Yüklenici: Nida İnşaat
Proje Yöneticisi: Nida İnşaat
Statik Projesi: Fonksiyon Mühendislik, Atilla Çaydamlı
Mekanik Projesi: Dinamik Proje Mühendislik, Hasan Özoğul
Elektrik Projesi: Enkom Mühendislik, Belgin Merey
Tesisat Projesi: Dinamik Proje Mühendislik, Hasan Özoğul
Proje Başlangıç Yılı: 2007
Proje Bitiş Yılı: 2011
İnşaat Bitiş Yılı: 2013
Arsa Alanı: 23.365 m²
Toplam İnşaat Alanı: 102.830 m²