25/25
Paylaş
Resmi Orjinal Boyutunda Göster
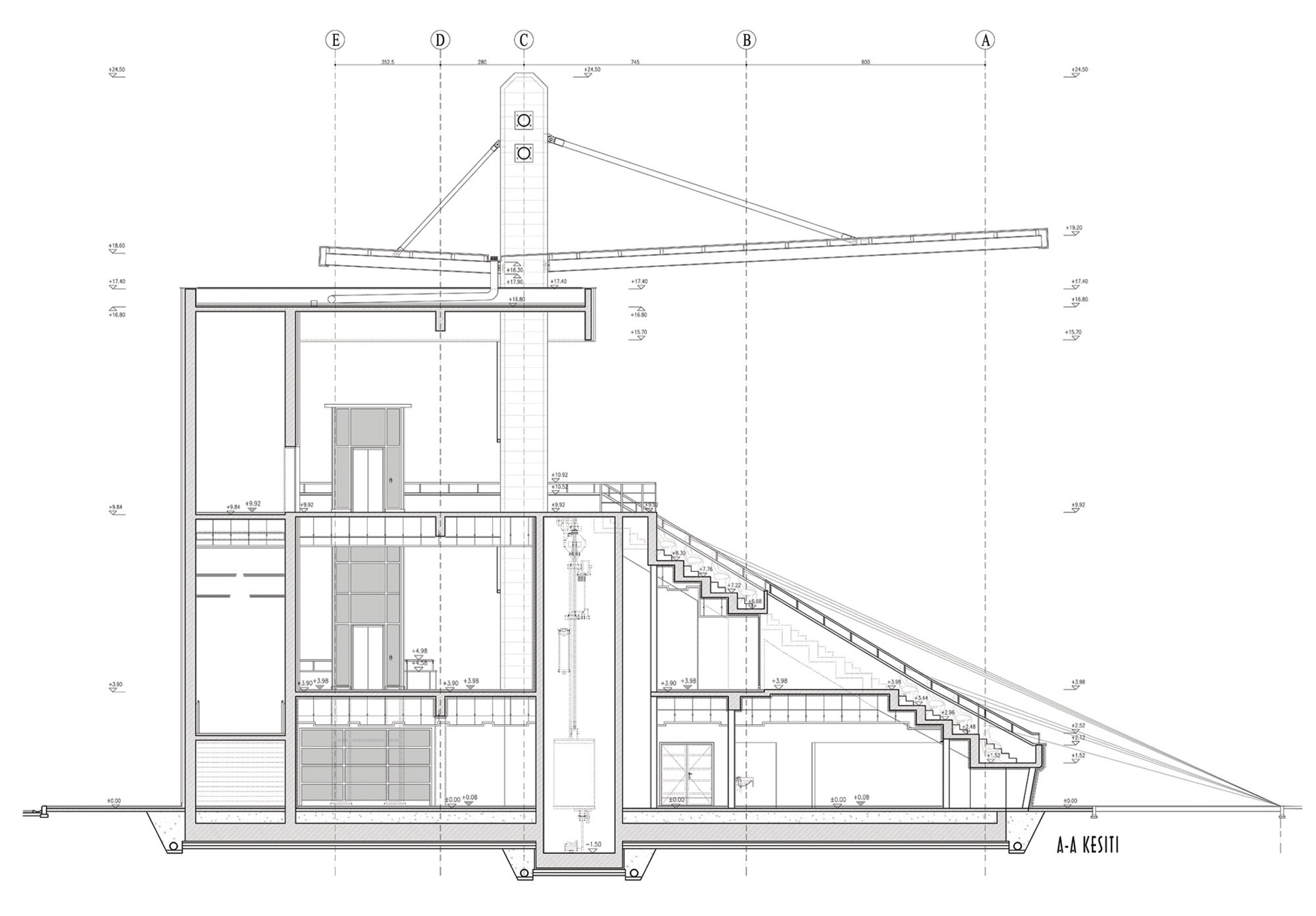
Mersin Akdeniz Oyunları Atletizm Tribünü
Proje Yeri: Mersin
Proje Ofisi: Uludağ Mimarlık
Proje Tipi: Diğer Spor Yapıları
Tasarım Ekibi: Orhan Uludağ, Zeynep Uludağ, Remzi Baştürk
İşveren: Gençlik ve Spor Bakanlığı
Ana Yüklenici: Deka İnşaat
Statik Projesi: Erbora Mühendislik, Çeskon Mühendislik
Fotoğraf: Orhan Uludağ
Proje Başlangıç Yılı: 2011
Proje Bitiş Yılı: 2011
İnşaat Başlangıç Yılı: 2012
İnşaat Bitiş Yılı: 2013
Arsa Alanı: 54.089 m²
Toplam İnşaat Alanı: 8.497 m²