21/23
Paylaş
Resmi Orjinal Boyutunda Göster
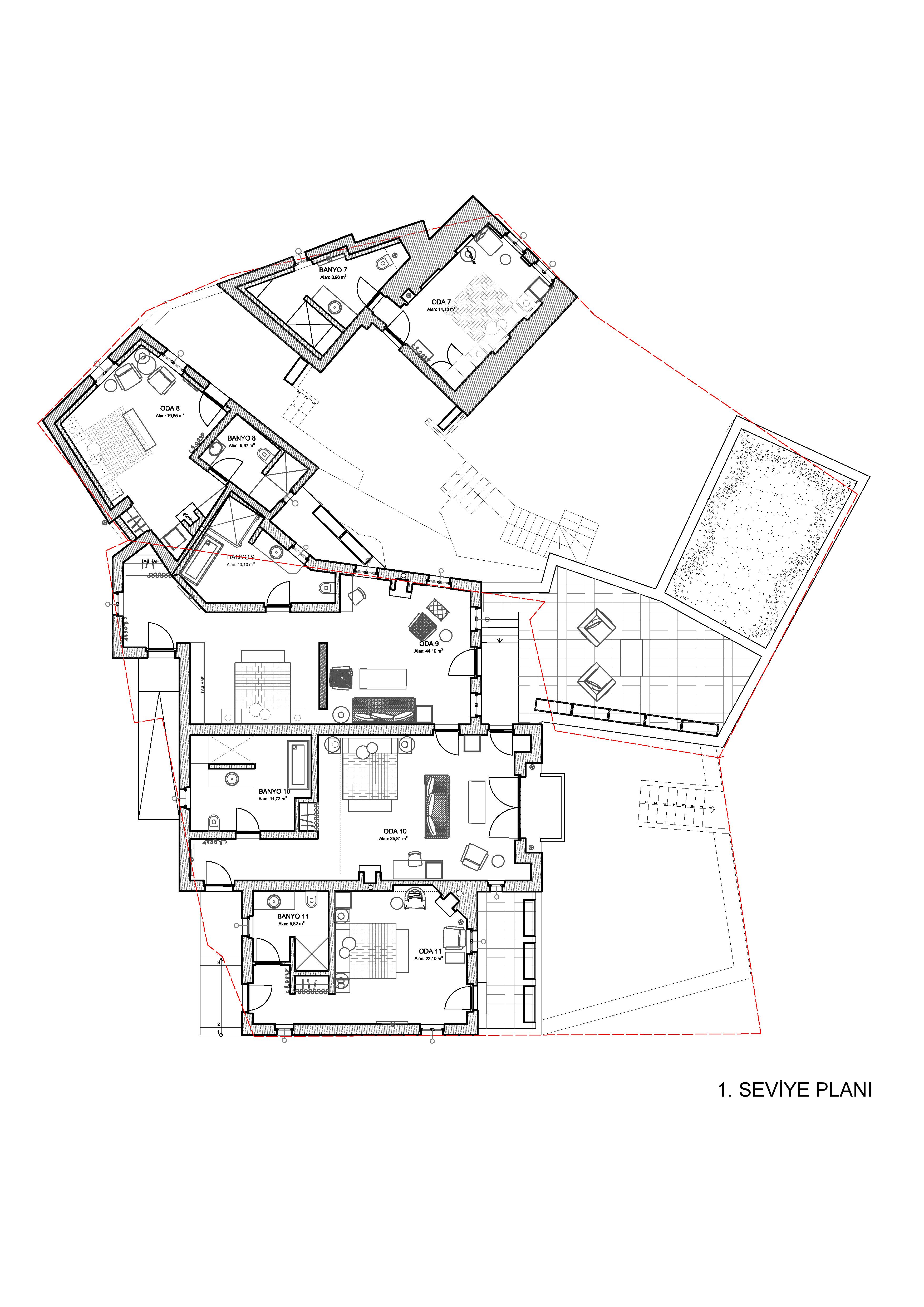
Tıraz Konak
Proje Yeri: Uçhisar, Nevşehir, Kapadokya
Proje Ofisi: Argos Yapı
Proje Tipi: Otel / Motel
Proje Tipi Grubu: Konaklama
Tasarım Ekibi: Aslı Özbay
İşveren: Argos Turizm, Mehmet Turgut Eltemur
Yardımcı: Bilal Akkoç, Hikmet Bilge, Ayçe Yalçın, Yusuf Nergiz
Ana Yüklenici: Argos Yapı
Proje Yöneticisi: Aslı Özbay
Proje Başlangıç Yılı: 2012
Proje Bitiş Yılı: 2013
İnşaat Başlangıç Yılı: 2012
İnşaat Bitiş Yılı: 2013
Arsa Alanı: 491 m2
Toplam İnşaat Alanı: 564 m²