Pafta - 5
6/7
Paylaş
Resmi Orjinal Boyutunda Göster
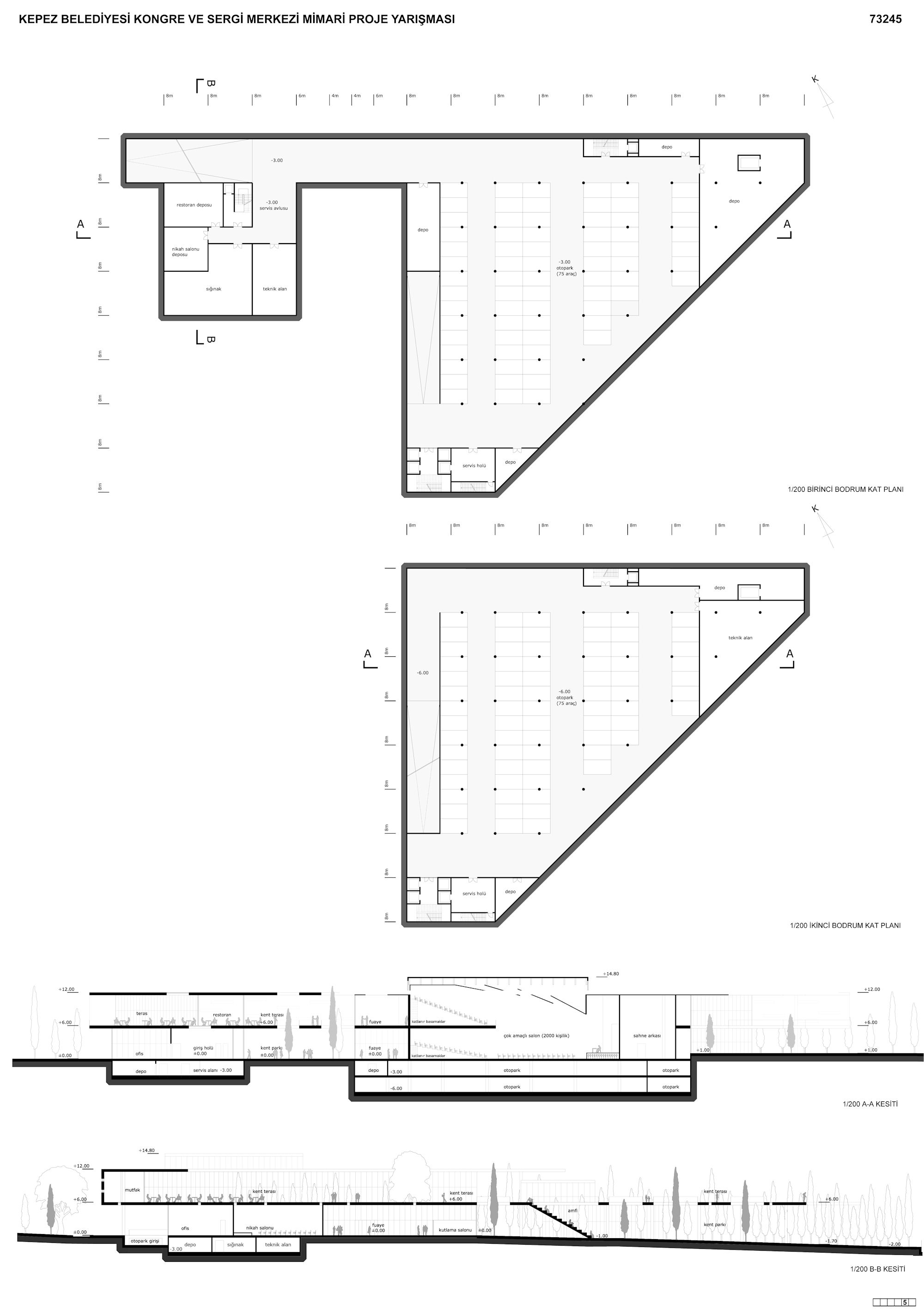
Antalya Kepez Belediyesi Kongre ve Sergi Merkezi Ulusal Mimari Proje Yarışması, Katılımcı: 35 Sıra Numaralı
Project Type: Convention Center, Exhibition Hall / Gallery
Proje Tipi Grubu: Katılımcı
Tasarım Ekibi: Yusuf Burak Dolu, Erhan Yıldız
Consultant: Şener Tüysüz, Murat İrevul, Derviş Boz