30/30
Paylaş
Resmi Orjinal Boyutunda Göster
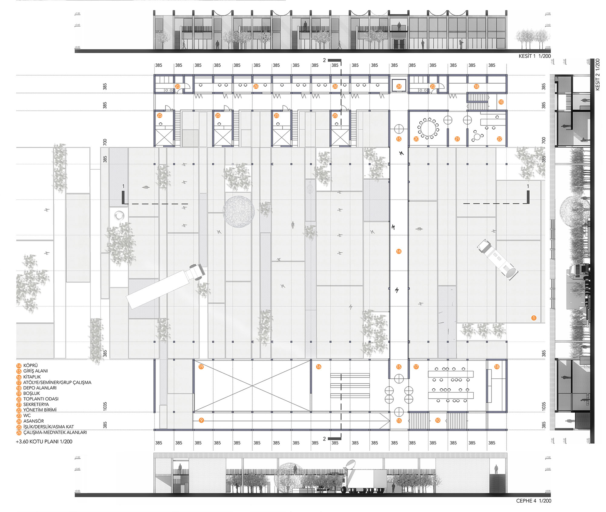
Agorapark
Project Location: İstanbul
Project Office: ddrlp Mimarlık ve Tasarım Hizmetleri
Project Type: Cultural Center, Park
Proje Tipi Grubu: Katılımcı
Tasarım Ekibi: Boğaçhan Dündaralp, Hakan Tüzün Şengün
Yardımcı: Çağrı Helvacıoğlu Aydoğu, Sarhang Dellal