37/39
Paylaş
Resmi Orjinal Boyutunda Göster
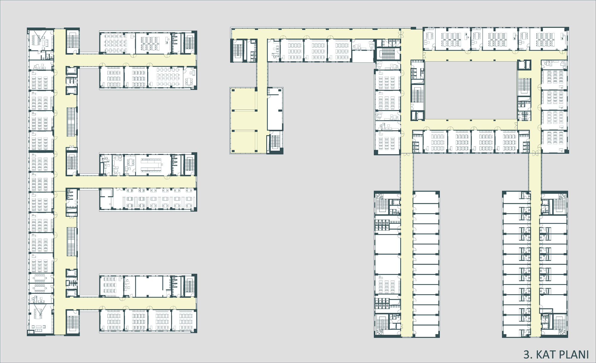
Anafen Koleji Ataşehir Kampüsü
Project Location: İstanbul, Ataşehir
Project Office: Zambak Mimarlık
Project Type: İlkokul
Proje Tipi Grubu: Eğitim
Tasarım Ekibi: Kamil Gürbüz
Employer: Manolya Eğitim Hizmetleri A.Ş.
Consultant: Fehmi Kızıl, Ekrem Şişman
Yardımcı: Serkan Gudu, Kubilay Metin, Ertan Ertuğrul, Eren Uyumaz
Projcet Manager: Zambak Mimarlık, Ümit Deniz Aras, Osman Usluerol, Hamdi Bulutçu, Mehmet Uğur Kılıç
Project Start Date: 2012
Project End Date: 2013
Construction Start Date: 2012
Construction End Date: 2013
Building Plot Area: 25.509 m²
Total Construction Area: 55.130 m²