29/35
Paylaş
Resmi Orjinal Boyutunda Göster
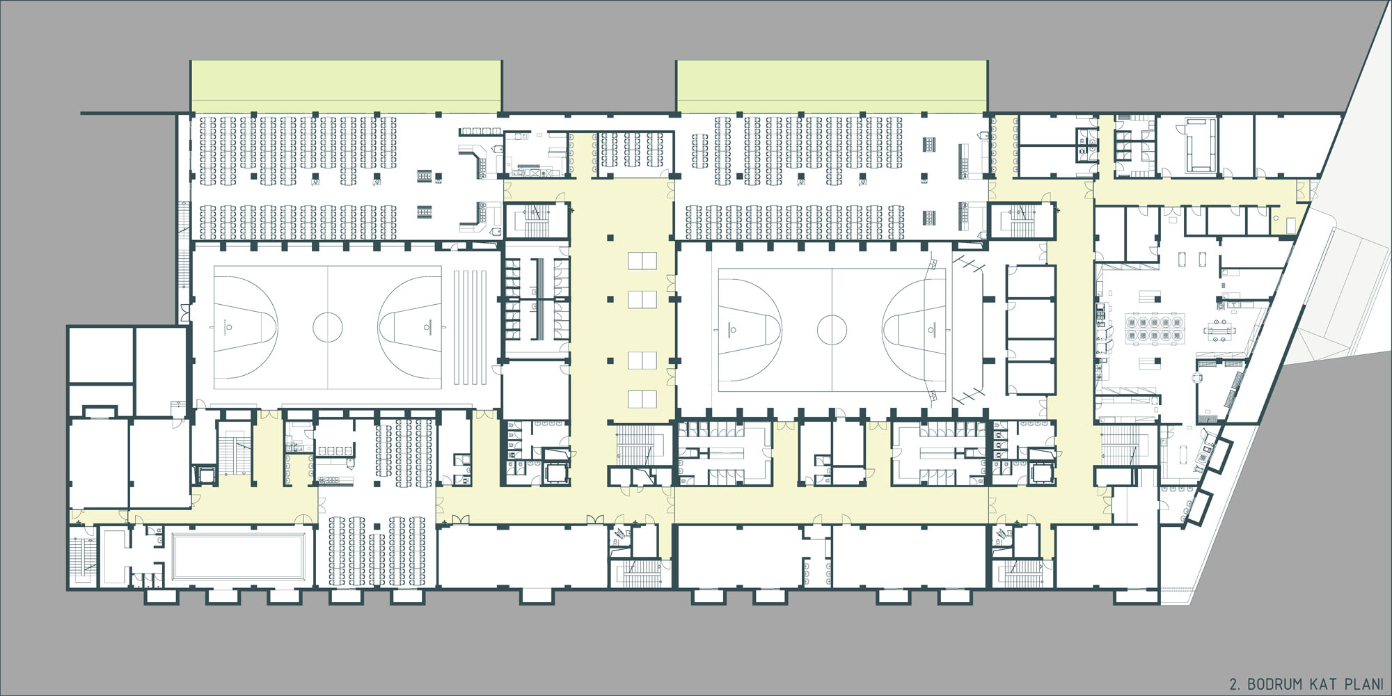
Fatih Koleji Kayaşehir İlköğretim Okulu
Proje Yeri: İstanbul, Başakşehir
Proje Ofisi: Zambak Mimarlık
Proje Tipi: İlkokul
Tasarım Ekibi: Ahmet Anıl
İşveren: Nema Eğitim Öğretim İşletmeleri A.Ş.
Danışman: Fehmi Kızıl, Ekrem Şişman, Kadir Karakoç
Yardımcı: Mehmet Ali Görür, Muharrem Akkaya, Eren Uyumaz
İç Mekan Projesi: Yusuf Hacıhaliloğlu, Fatih Bayhan, Hakan Kurtuluş, Ahmet Niziplioğlu
Proje Yöneticisi: Zambak Mimarlık, Turan Kınacı, Turgut Yılmaz, Ömer Faruk Zengin
Fotoğraf: Alp Eren, ALTKAT Architectural Photography
Proje Başlangıç Yılı: 2012
Proje Bitiş Yılı: 2013
İnşaat Başlangıç Yılı: 2013
İnşaat Bitiş Yılı: 2013
Arsa Alanı: 17.648 m²
Toplam İnşaat Alanı: 25.771 m²