26/26
Paylaş
Resmi Orjinal Boyutunda Göster
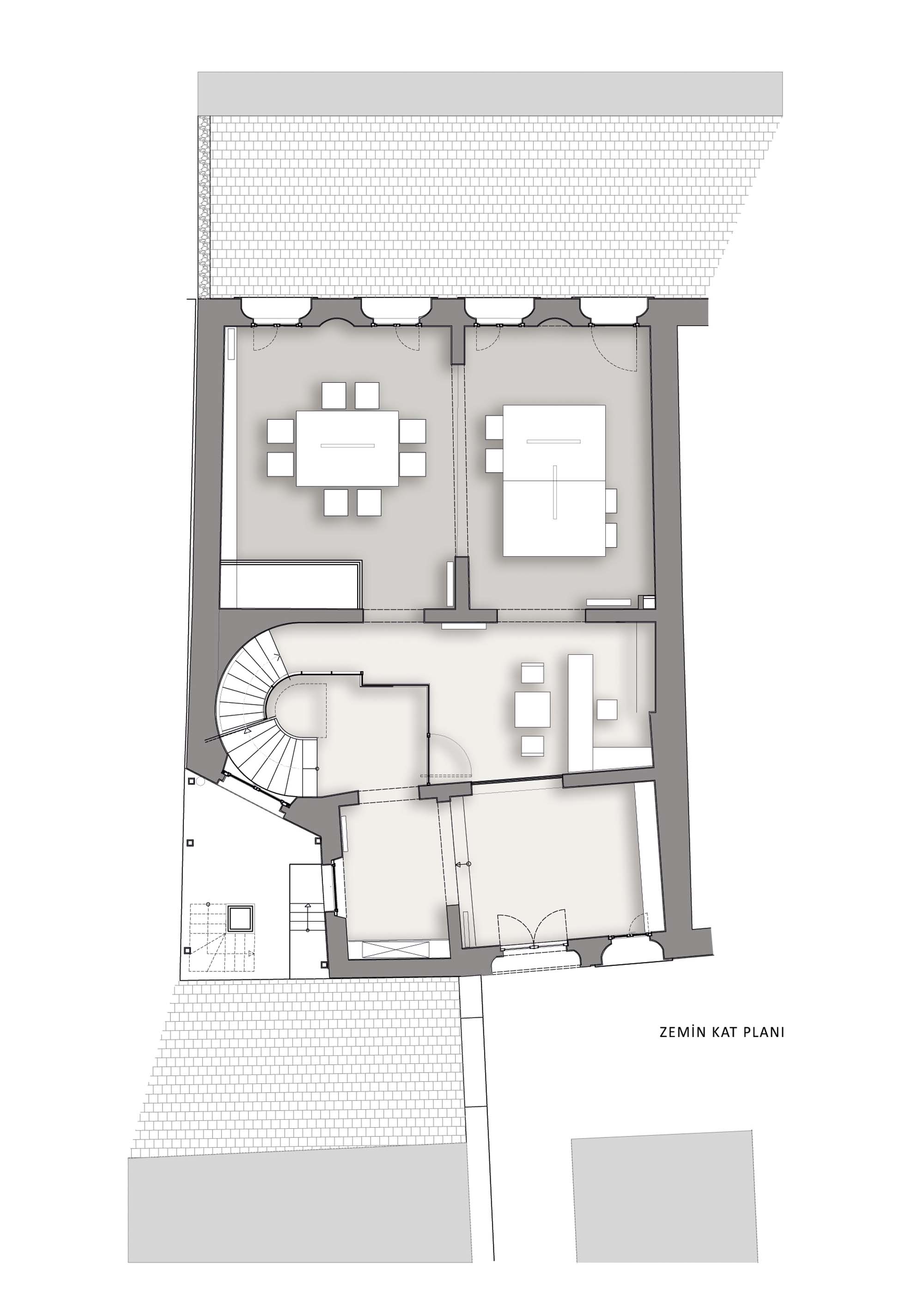
Arc Suites
Proje Yeri: İstanbul, Beyoğlu
Proje Ofisi: Atelye70 Planners and Architects
Proje Tipi: Ofis, Otel / Motel
Proje Tipi Grubu: Konaklama
Tasarım Ekibi: Doğu Kaptan, Yonca Temizkan, Murat Er, Marco Lombardini
İşveren: Atelye70 Planners and Architects
Yardımcı: Graziella Vasquez, Gizem Korkut
Ana Yüklenici: Atelye70 Planners and Architects
İç Mekan Projesi: Atelye70 Planners and Architects
Proje Yöneticisi: Atelye70 Planners and Architects
Fotoğraf: Güner Korali
Proje Başlangıç Yılı: 2011
Proje Bitiş Yılı: 2011
İnşaat Başlangıç Yılı: 2011
İnşaat Bitiş Yılı: 2011
Toplam İnşaat Alanı: 1.100 m2