9/9
Paylaş
Resmi Orjinal Boyutunda Göster
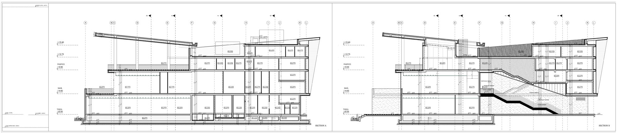
Bakü Sahil Restaurant
Proje Yeri: Bakü, Azerbaycan
Proje Ofisi: Erginoğlu & Çalışlar Mimarlık
Proje Tipi: Restoran / Kafe / Bar
Tasarım Ekibi: Kerem Erginoğlu, Hasan Çalışlar, Zeynep Şankaynağı, Işık Süngü, Fatih Kariptaş
İşveren: Pasha Construction
Ana Yüklenici: Pasha Construction
İç Mekan Projesi: Blue Sky Hospitality
Statik Projesi: Modern Mühendislik
Mekanik Projesi: Beta Teknik
Elektrik Projesi: Enkom Mühendislik
Fotoğraf: Cemal Emden
Proje Bitiş Yılı: 2009
İnşaat Bitiş Yılı: 2009
Arsa Alanı: 1.300 m²
Toplam İnşaat Alanı: 2.700 m²