12/13
Paylaş
Resmi Orjinal Boyutunda Göster
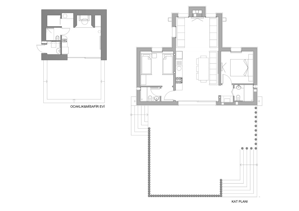
K Demir Haftasonu Konutu
Proje Yeri: Kayseri
Proje Ofisi: Turim Mimarlık
Proje Tipi: Tek Ev / Villa
Tasarım Ekibi: Kemal Demir
İşveren: Kemal Demir
Ana Yüklenici: Kemal Demir
Statik Projesi: Hüseyin Özbağ
Proje Başlangıç Yılı: 2008
Proje Bitiş Yılı: 2008
İnşaat Başlangıç Yılı: 2008
İnşaat Bitiş Yılı: 2009
Arsa Alanı: 3,926 m2
Toplam İnşaat Alanı: 94 m2