4/15
Paylaş
Resmi Orjinal Boyutunda Göster
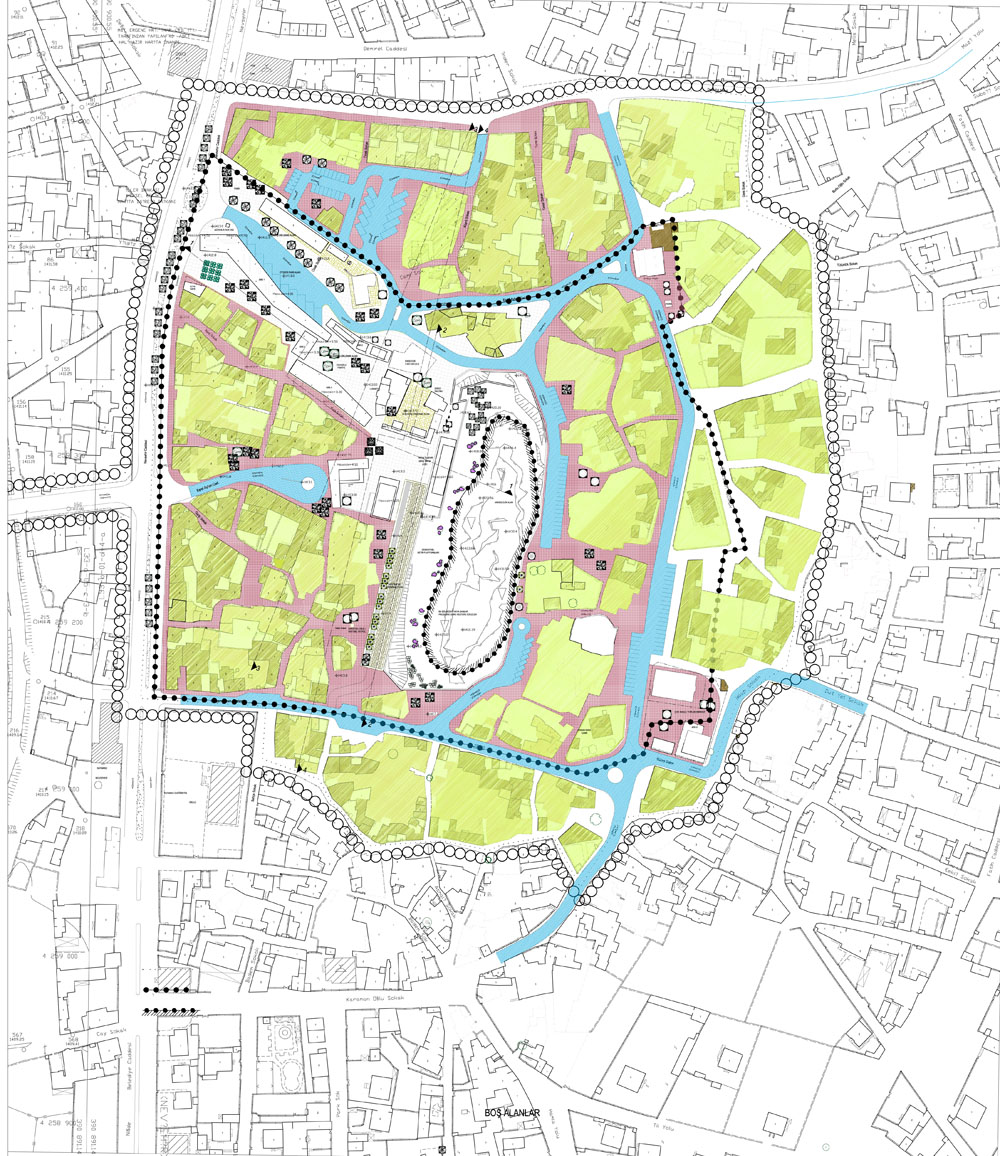
Kaymaklı Yeraltı Şehri
Proje Yeri: Nevşehir, Kapadokya, Kaymaklı
Proje Ofisi: Mimarlık Araştırmaları Stüdyosu (MArS - Mimarlar), Ülkü Mimarlık
Proje Tipi: Kentsel Tasarım
Proje Tipi Grubu: Kentsel Tasarım
Tasarım Ekibi: Atilla Yücel, Cem Yücel
Mimari Proje Ekibi: Pelin Serin, C. Feyza Sarı, Burçin Baykurt, Yurdagül Tekin
İşveren: Kaymaklı Belediyesi
Yardımcı: Ülkünur Demir
Peyzaj Mimarlığı: Neyran Yontar
Şehircilik Projesi: Sevim Filiz
Proje Yöneticisi: Ülkünur Demir
Proje Başlangıç Yılı: 2011
Proje Bitiş Yılı: 2012
İnşaat Başlangıç Yılı: 2013
Arsa Alanı: 148,426 m²
Toplam İnşaat Alanı: 5,500 m²