19/19
Paylaş
Resmi Orjinal Boyutunda Göster
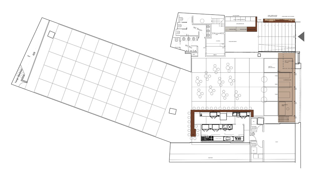
Garajistanbul2
Project Location: Beyoğlu, İstanbul
Project Office: Mimarlık Araştırmaları Stüdyosu (MArS - Mimarlar)
Project Type: Concert Hall, Theater Hall
Proje Tipi Grubu: Kültür
Tasarım Ekibi: Cem Yücel
Employer: Garajistanbul
Yardımcı: Yurdagül Tekin, Emre Aydilek, Özge Çağlar
Interior Architecture: Mimarlık Araştırmaları Stüdyosu (MArS - Mimarlar)
Lighting Project: Mimarlık Araştırmaları Stüdyosu (MArS - Mimarlar), Tepta Aydınlatma
Electrical Project: Uzunlar Elektrik
Project Start Date: 2005,
Project End Date: 2012
Construction Start Date: 2005
Construction End Date: 2012