28/36
Paylaş
Resmi Orjinal Boyutunda Göster
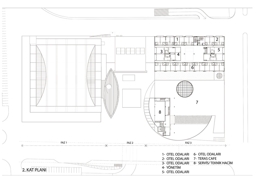
Mall of Montenegro
Fotoğraflar: Cemal Emden, 2012 ve Gintaş-Mont 2013 (Otel Bölümü)
Proje Yeri: Podgorica, Karadağ
Proje Ofisi: Mimarlık Araştırmaları Stüdyosu (MArS - Mimarlar)
Proje Tipi: Alışveriş Merkezi
Tasarım Ekibi: Atilla Yücel, Cem Yücel
İşveren: Gintaş İnşaat, Podgorica Belediyesi
Danışman: Vesna Rakcevitch, Montenegro Üniversitesi Mühendislik Fakültesi
Yardımcı: Elif Kılıç, Evren Şerbetçi, Ayşe Hassan, Emre Aydilek, Serra Eskicioğlu
Ana Yüklenici: Gintaş İnşaat
Şehircilik Projesi: Maya Velimirovitch
İç Mekan Projesi: Seçil Buldan
Statik Projesi: Salih Zeki Ün
Mekanik Projesi: Beta Teknik
Elektrik Projesi: FDC
Proje Başlangıç Yılı: 2003
Proje Bitiş Yılı: 2009
İnşaat Başlangıç Yılı: 2005
İnşaat Bitiş Yılı: 2011
Arsa Alanı: 19,700 m²
Toplam İnşaat Alanı: 57,000 m²