3/16
Paylaş
Resmi Orjinal Boyutunda Göster
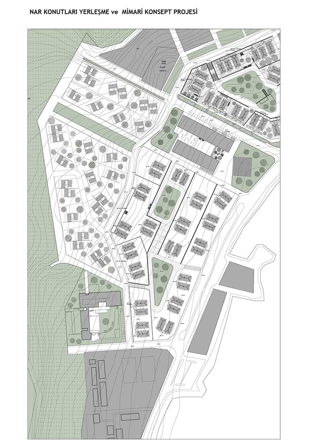
Nar Kentsel Tasarım ve Konutları
Project Location: Nevşehir, Kapadokya, Nar
Project Office: Mimarlık Araştırmaları Stüdyosu (MArS - Mimarlar)
Project Type: Housing Complex
Proje Tipi Grubu: Konut
Tasarım Ekibi: Atilla Yücel
Employer: Ali Erdoğmuş
Yardımcı: Burçin Baykurt
Project Start Date: 2010
Project End Date: 2011
Construction Start Date: 2011
Building Plot Area: 10,250 m²
Total Construction Area: 11,200 m²