4/5
Paylaş
Resmi Orjinal Boyutunda Göster
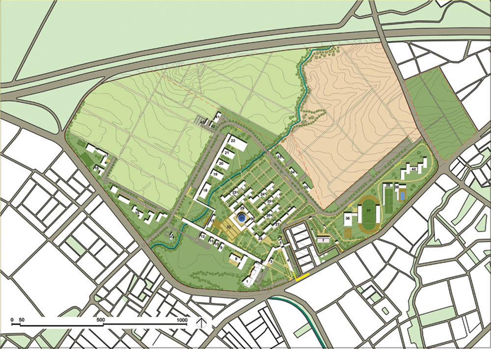
Adana Bilim ve Teknoloji Üniversitesi Master Planı
Project Location: Adana
Project Office: Arıkoğlu Arkitekt
Project Type: University Campus
Tasarım Ekibi: Kaya Arıkoğlu
Employer: Adana Bilim ve Teknoloji Üniversitesi
Consultant: İsmail Şahin
Yardımcı: Cihan Türker, Şahin Arıkoğlu, Nadire Arık
Interior Architecture: Kaya Arıkoğlu
Structural Project: Muhittin Yengüner
Mechanical Project: Selahattin Alsancak
Project Start Date: 2011
Building Plot Area: 2,600,000 m²
Total Construction Area: 295,000 m², 300,000 m²