8/9
Paylaş
Resmi Orjinal Boyutunda Göster
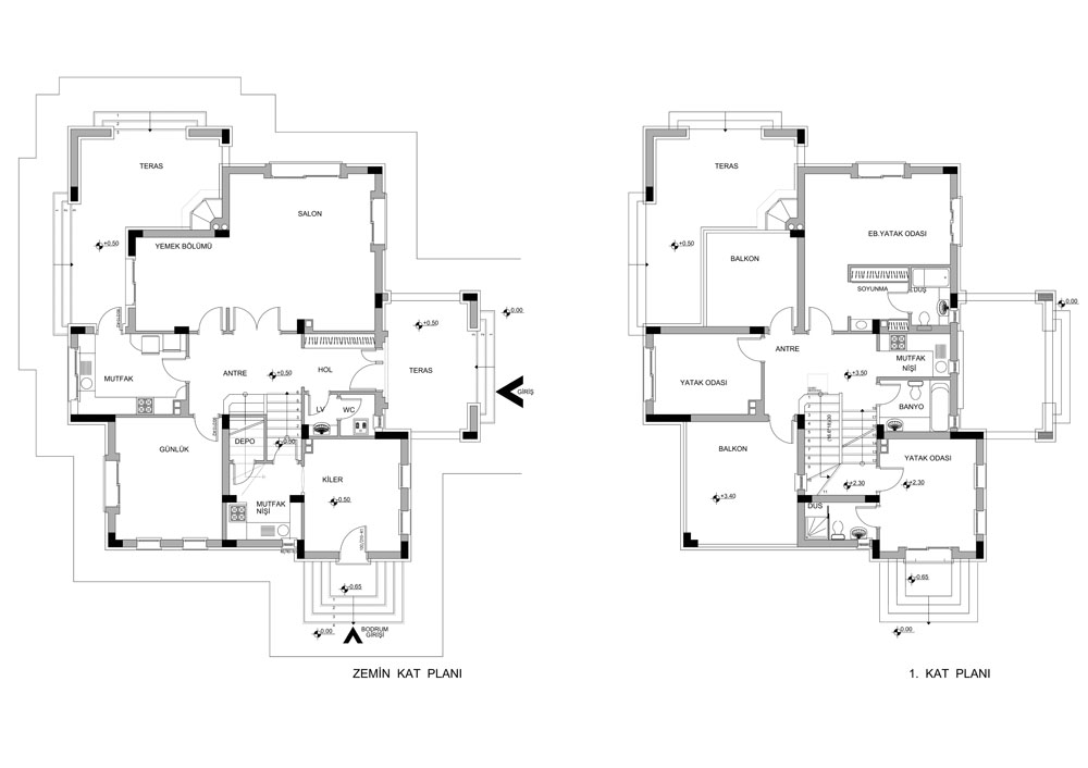
A. Eminel Konutu 2
Proje Yeri: Kayseri
Proje Ofisi: Turim Mimarlık
Proje Tipi: Tek Ev / Villa
Tasarım Ekibi: Kemal Demir
Ana Yüklenici: Ahmet Eminel
Statik Projesi: Ahmet Eminel
Proje Başlangıç Yılı: 2002
Proje Bitiş Yılı: 2002
İnşaat Başlangıç Yılı: 2002
İnşaat Bitiş Yılı: 2004
Arsa Alanı: 1,166 m2
Toplam İnşaat Alanı: 278 m2