Pafta - 3
4/7
Paylaş
Resmi Orjinal Boyutunda Göster
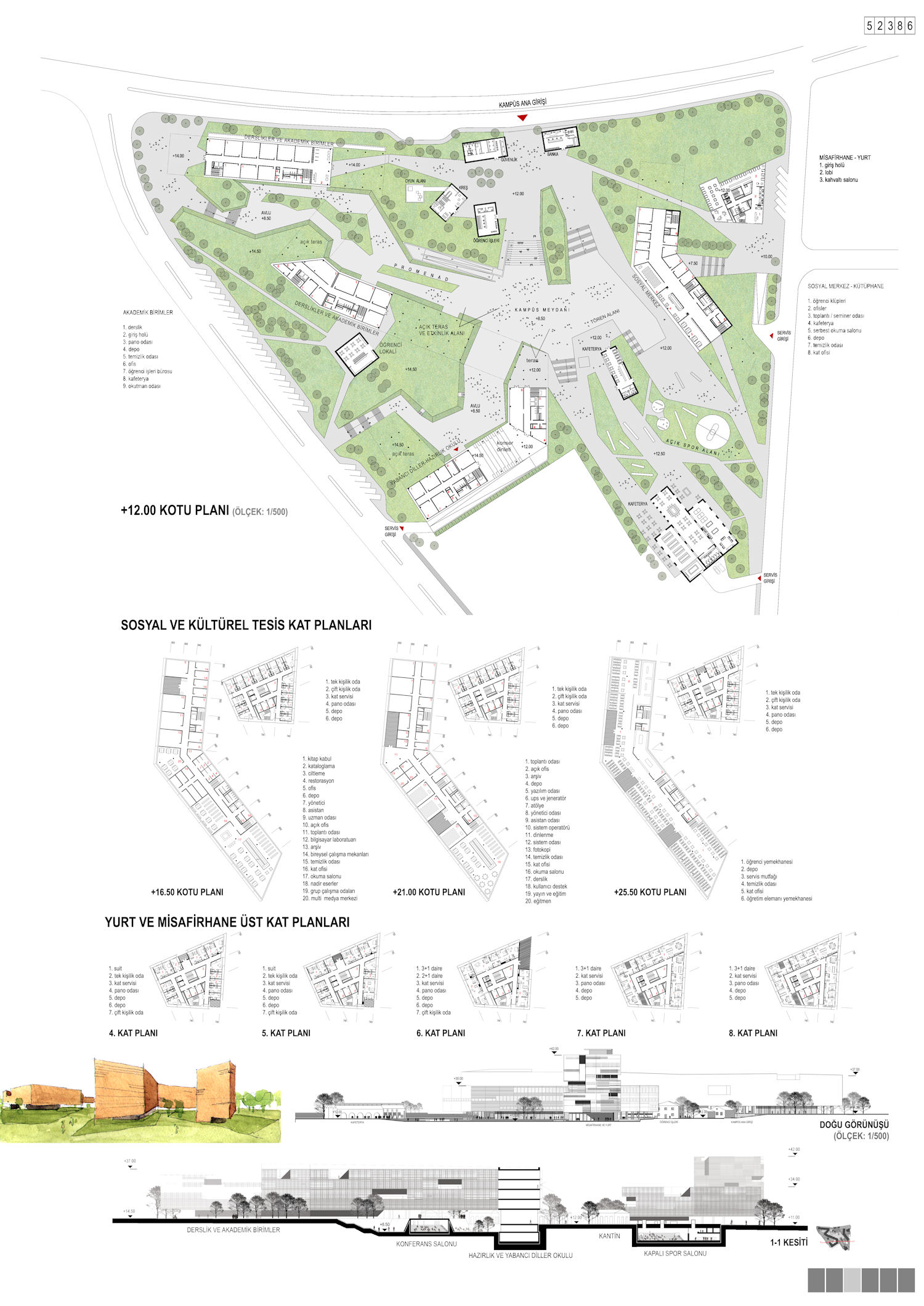
İTÜ KKTC Eğitim Araştırma Yerleşkeleri, Gazimağusa Yerleşkesi Davetli Mimari Proje Yarışması, 2. Ödül
Proje Ofisi: TeCe Mimarlık
Proje Tipi: Üniversite Kampüsü
Proje Tipi Grubu: 2. Ödül
Tasarım Ekibi: Cem İlhan, Tülin Hadi, Emine Derya Ertan, Keriman Afyonlu
Yardımcı: Tolgay Keskin, Gizem İçer, Mehmet Altunbay, Deniz Cabadak, Ömer Faruk Tekin
Statik Projesi: Yusuf Tımbır