16/25
Paylaş
Resmi Orjinal Boyutunda Göster
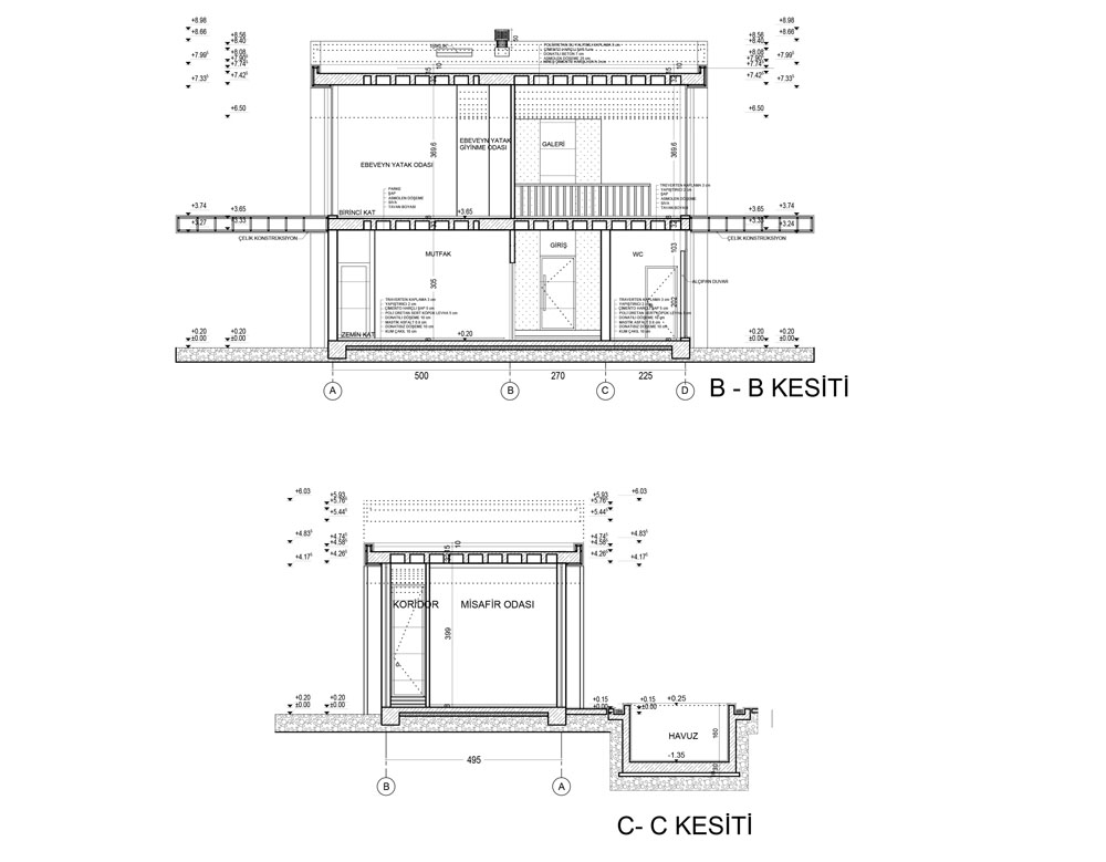
Baran Vİlla
Proje Yeri: Antalya, Döşemealtı
Proje Ofisi: DNA Mimarlık Nail Atasoy
Proje Tipi: Tek Ev / Villa
Tasarım Ekibi: Nail Atasoy
İşveren: Barbaros Baran
Yardımcı: Emine Dönderici, Hülya Tuncer, Sümeyya Yeğiner, Canan Altundaş, Arzu Atasoy
Ana Yüklenici: DNA Mimarlık Nail Atasoy
İç Mekan Projesi: DNA Mimarlık Nail Atasoy
Proje Yöneticisi: Nail Atasoy
Statik Projesi: Özer Gencay
Mekanik Projesi: Isı Tek
Elektrik Projesi: ÜTK Elektrik
Proje Başlangıç Yılı: 2012
Proje Bitiş Yılı: 2012
İnşaat Başlangıç Yılı: 2012
İnşaat Bitiş Yılı: 2013
Arsa Alanı: 900 m2
Toplam İnşaat Alanı: 312 m²