10/17
Paylaş
Resmi Orjinal Boyutunda Göster
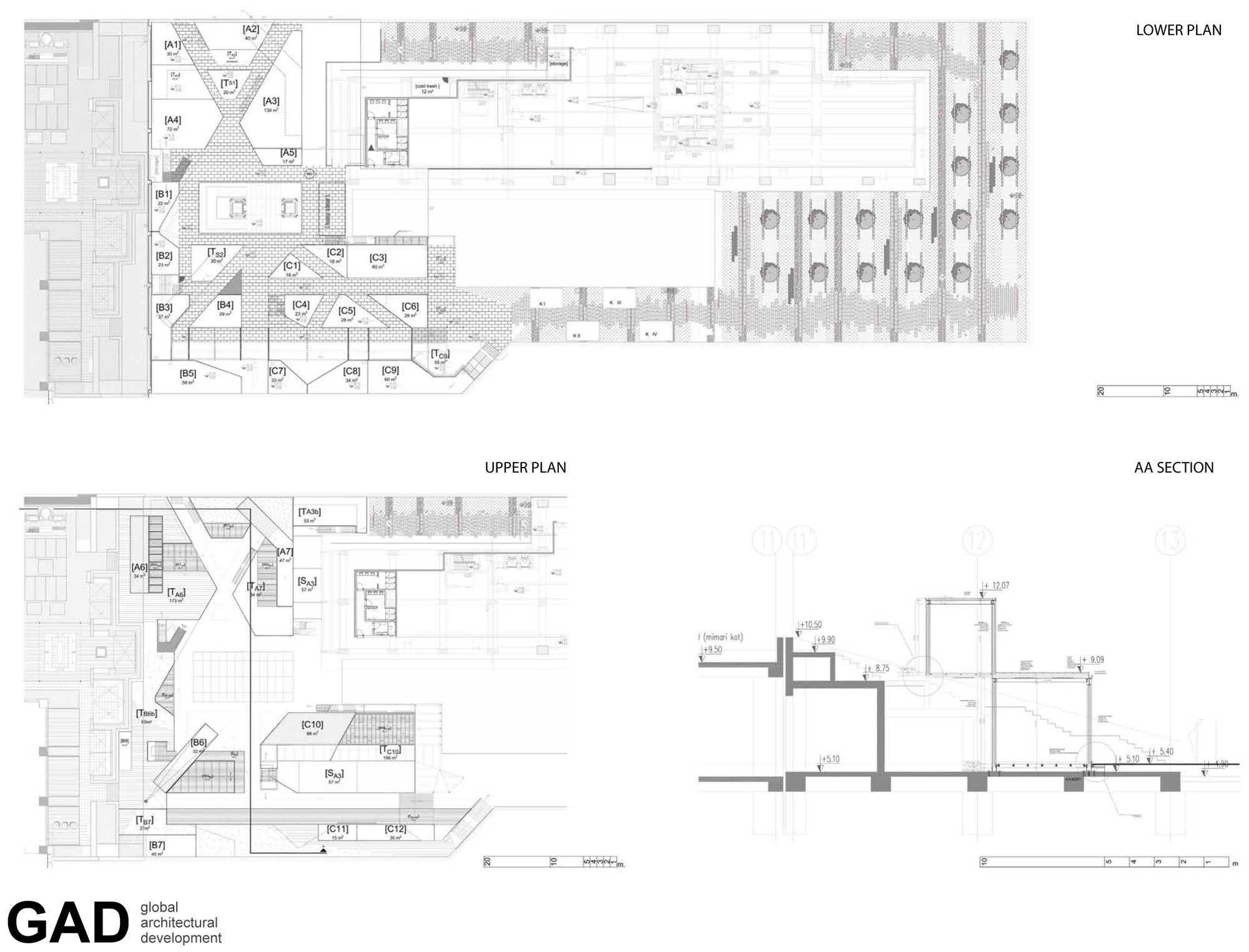
Trump Cadde
Proje Yeri: Mecidiyeköy, İstanbul
Proje Ofisi: Global Architectural Development (GAD)
Proje Tipi: Alışveriş Merkezi
Tasarım Ekibi: Gökhan Avcıoğlu
Mimari Proje Ekibi: Jonas Kirsch, Derya Arpaç, Tahsin İnanıcı, Gökşen Güngör
Peyzaj Mimarlığı: Global Architectural Development (GAD)
Fotoğraf: Alp Eren
Proje Başlangıç Yılı: 2013
Proje Bitiş Yılı: 2013
İnşaat Başlangıç Yılı: 2013
İnşaat Bitiş Yılı: 2014
Arsa Alanı: 2.100 m2
Toplam İnşaat Alanı: 1.040 m2