6/7
Paylaş
Resmi Orjinal Boyutunda Göster
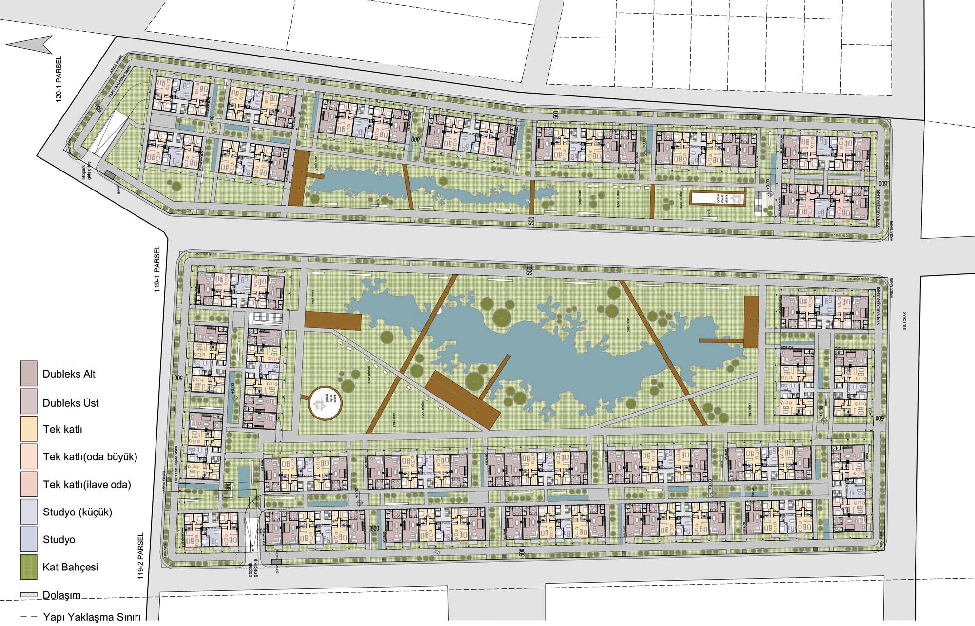
Arifiye Konutları
Proje Yeri: Arifiye, Adapazarı (Sakarya)
Proje Ofisi: Boran Ekinci Mimarlık, Hakan Dalokay Mimarlık
Proje Tipi: Konut Sitesi / Grubu
Tasarım Ekibi: Boran Ekinci, Hakan Dalokay
İşveren: Yeşil GYO
Yardımcı: Deniz Okten, Bora Bayrakçı, Handenur Yazıcı Engin, Mürüvvet Gülcan Şahin, Gizem Çakır
Proje Yöneticisi: Boran Ekinci, Hakan Dalokay
Proje Başlangıç Yılı: 2013
Proje Bitiş Yılı: 2013
Toplam İnşaat Alanı: 92,212 m²