15/16
Paylaş
Resmi Orjinal Boyutunda Göster
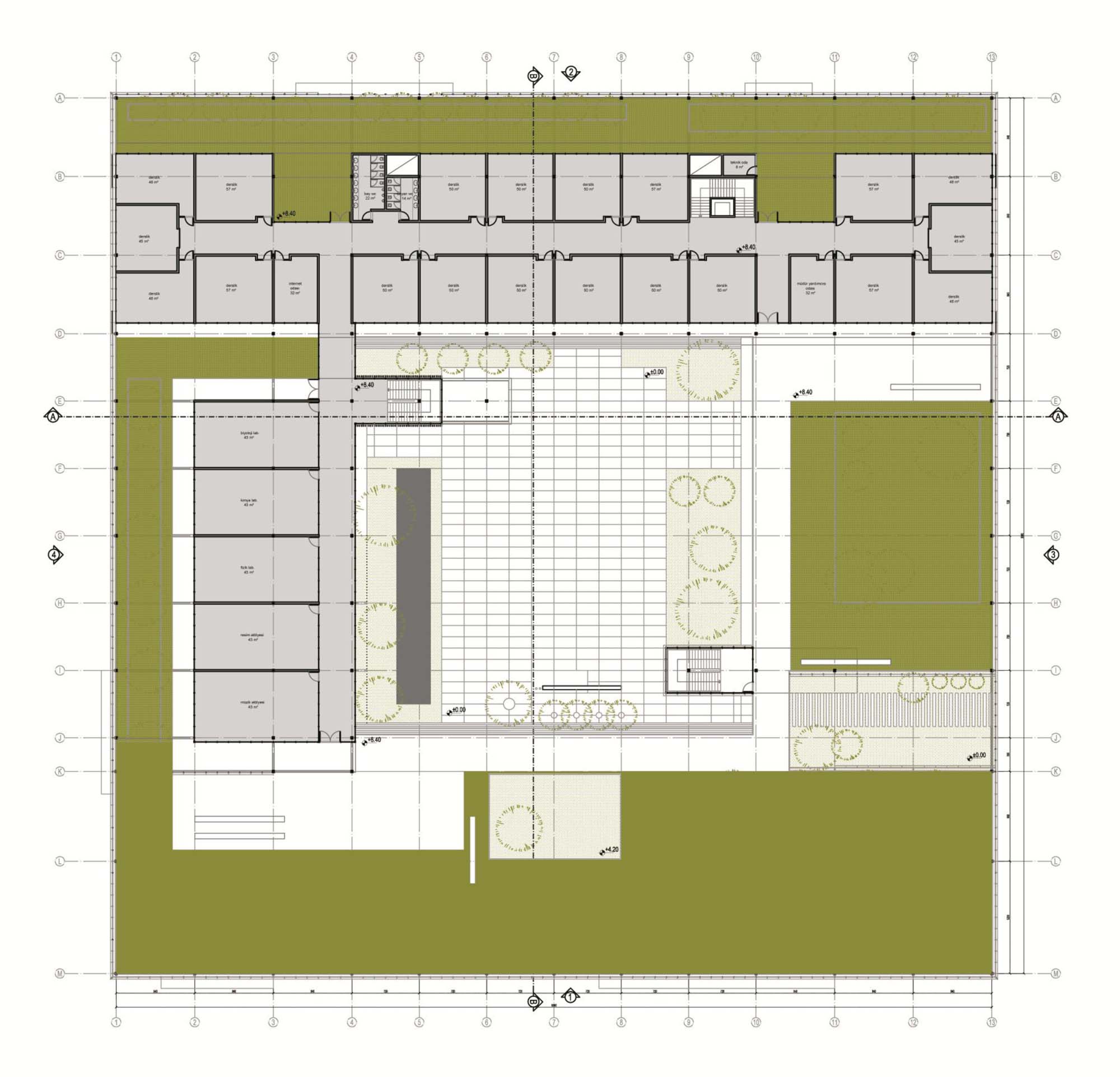
İzmir Atatürk Organize Sanayi Bölgesi
Proje Yeri: İzmir
Proje Ofisi: Boran Ekinci Mimarlık
Proje Tipi: Sanayi Sitesi
Tasarım Ekibi: Boran Ekinci
Yardımcı: Erkmen Korkmaz
Peyzaj Mimarlığı: Butik Peyzaj Mimarlık
Statik Projesi: Nodus Mühendislik
Mekanik Projesi: Beta Teknik
Elektrik Projesi: DBA Mühendislik
Proje Başlangıç Yılı: 2012
Proje Bitiş Yılı: 2012
Toplam İnşaat Alanı: 14,430 m²